Te koop NIEUWBOUWPROJECT NIOBE TE ASSE - 6 PROCENT BTW MOGELIJK
OC Vastgoed stelt u graag dit nieuwbouwproject voor genaamd 'NOIBE'! Dit project is gelegen op een uiterst goede locatie met prachtig verzicht op groen gegarandeerd voor elk appartement! Asse is een plaats en gemeente in het westen van de Belgische provincie Vlaams-Brabant en het arrondissement Halle-Vilvoorde.
6% BTW, indien u aan de voorwaarden voldoet.
NIOBE is een standingvol, zorgvuldig ontwikkeld (BEN) nieuwbouwproject op de hoek van Koensborre en de Koningin Astridlaan nabij het centrum van Asse. Het project bestaat uit 4 leefappartementen telkens voorzien van 2 slaapkamers met ruime zonneterrassen. Reeds 2 appartementen verkocht!
De appartementen worden uitgerust met individuele, hoogrenderende condensatieketels op aardgas, ventilatiesystemen met warmterecuperatie en fotovoltaïsche panelen voor de appartementen waar noodzakelijk. Hierdoor geniet elk appartement van een E-peil lager of gelijk aan 40 wat u een erg lage energiefactuur zal opleveren!
Voor een optimaal comfort voor alle inwoners zijn er op het gelijkvloers 5 staanplaatsen, 5 kelderbergingen en een afzonderlijk fietsenlokaal aanwezig.
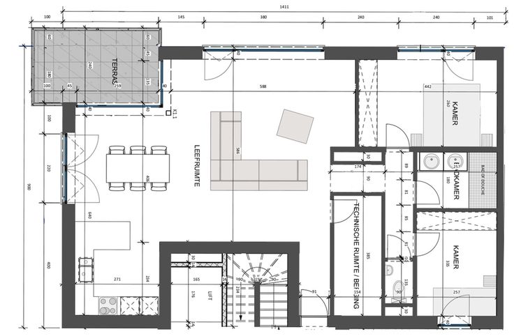
De indeling van het appartement (2.1) is als volgt (en kan nog gewijzigd dus worden op vraag van de klant, waar mogelijk):
Dit appartement (2.1) beschikt over een ruime leefruimte met keuken, berging, 2 slaapkamers en een badkamer.
Voor bijkomende informatie of het brengen van een bezoek ter plaatse inzake de verschillende appartementen in ...
Renovatieplicht: onbekend