Te koop Stijlvolle handelsruimte - strategisch top!

Beschrijving van   

Vergelijk realty's

Te koop Stijlvolle handelsruimte - strategisch top!

Stijlvolle handelsruimte - strategisch top! Stijlvolle handelsruimte - strategisch top!
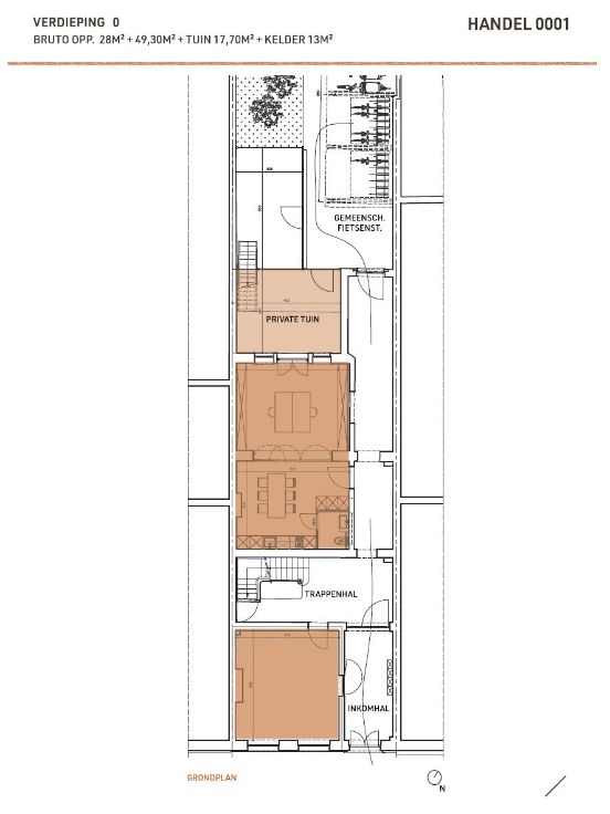
In de Bondgenotenlaan, dé winkelstraat die Martelarenplein en De Somerplein met elkaar verbindt, vind je achter een prachtige renaissancistische gevel uit 1920, Residentie Alliés. Een charmante door Kwalis vernieuwbouwde residentie met hoogwaardige afwerking, unieke erfgoedelementen en energiezuinige installaties (warmtepomp, zonnepanelen, enz...). Behalve de acht wooneenheden vind je er op het gelijkvloers een perfect gelegen, handelsruimte van 77 m² met privatieve stadstuin. Bij deze mooie handelsruimte hoort een bergkelder van 13 m². De handelsruimte zal casco worden opgeleverd echter indien gewenst kunnen wij ook voor de afwerking ervan zorgen. Interessante investering met prima rendement! Huurgarantie aan marktconforme huurprijzen en kosteloos beheer mogelijk. Nu kopen, pas in oktober 2024 betalen. !! Helemaal nieuw, doch verkoop onder registratierecht. GEEN btw !! Troeven: Toplocatie! Hoogwaardig vernieuwd! Lage energiekost! Interesse? Contacteer Ben op +32 477 35 97 96 of via ben@kwalis.be
Type vastgoed Commercieel
Prijs Op aanvraag
Bewoonbare opp. 77