Te koop Huis

Beschrijving van   

Vergelijk realty's

Te koop Huis

Huis Huis Huis Huis Huis Huis Huis Huis Huis Huis Huis Huis Huis Huis Huis
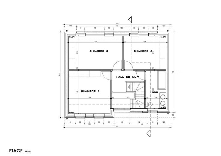
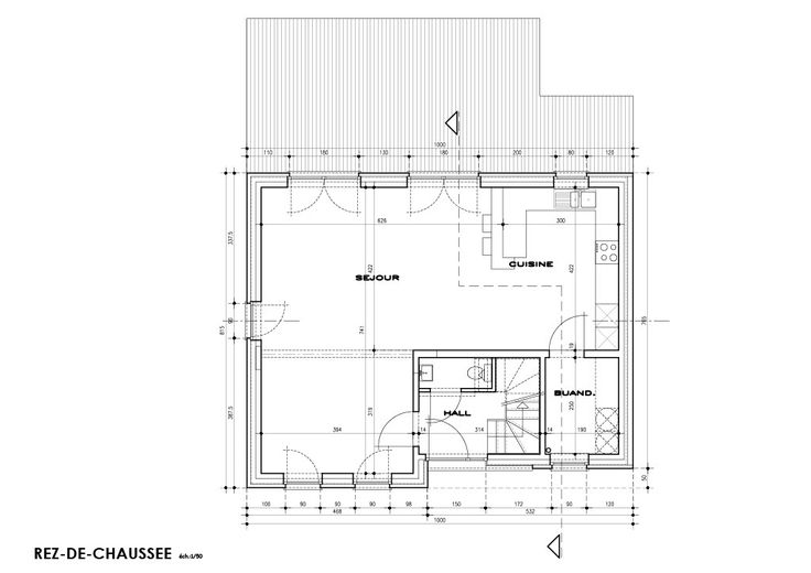
Ce projet est entièrement personnalisable selon vos envies et vos désirs. Nous avons le plaisir de vous présenter ce superbe terrain à bâtir situé dans une belle ville du nom de Bilstain. Ce terrain possède une superficie de 965 m² avec une façade à rue de 35 m² ainsi qu'une profondeur de 28 m². Sa localisation va totalement vous ravir car en effet, les commerces tels que les restaurants, les supermarchés ainsi que les pompes à essence se situent à seulement 5 minutes de l'emplacement du terrain. Le E42 est seulement à 2 minutes. Un projet d'une construction 4 façades de 150 m² vous est proposé et se compose comme suit : Au rez-de-chaussée, vous retrouverez un hall d'entrée avec un WC, un séjour lumineux avec une cuisine ouverte ainsi qu'une buanderie. Un hall de nuit, étant à l'étage, vous donnera un accès à 3 belles chambres à coucher ainsi qu'à une salle de bain. Ce projet est entièrement modulable et personnalisable en fonction de vos envies. Ce projet vous est proposé pour un prix de 366.732 € terrain compris, HTVA et frais d'architecte. Le prix est à titre indicatif et pourra être modifié en raison de la personnalisation du projet.
Type vastgoed Huis
Prijs 366.732
Bewoonbare opp. 150
Aantal slaapkamers 3
Aantal badkamers 1