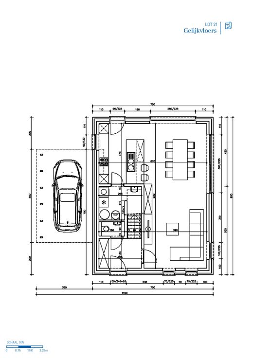
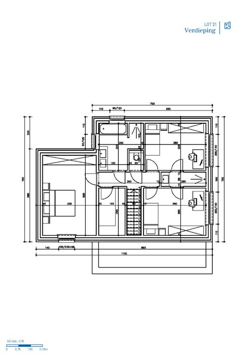
Ontdek de charme van deze energiezuinige E30-S28 nieuwbouwwoning in het hart van Evergem – een waar pareltje onder de woningen! Genesteld op een royaal perceel van 518m2, met een gunstige zuidelijke oriëntatie, wordt deze woning volledig afgestemd op jouw wensen en behoeften. De woning onderscheidt zich door een doordachte indeling op het gelijkvloers met een ruime inkom voorzien van mogelijkheden voor een grote vestiairekast en een gastentoilet. Daarnaast biedt het gelijkvloers een open keuken en een leefruimte met natuurlijk licht evenals een handige berging/wasplaats. De eerste verdieping verwelkomt je met 3 slaapkamers, een badkamer compleet met zowel een bad als een douche en een tweede berging, aangevuld met een douchekamer voor extra comfort. Deze tot in de puntjes afgewerkte woning straalt praktisch comfort uit. Benieuwd en klaar om je droomhuis te ontdekken? Aarzel niet en neem contact op met Ewout via 0497 588 888 of stuur een e-mail naar contact@huysmanbouw voor meer informatie.
Renovatieplicht: onbekend