Te koop Huis

Beschrijving van   

Vergelijk realty's

Te koop Huis

Huis Huis Huis Huis Huis Huis Huis Huis Huis Huis Huis Huis
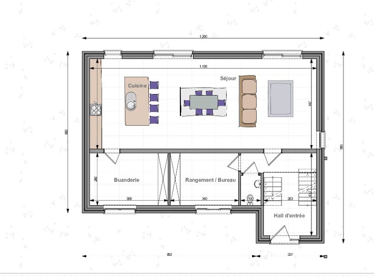
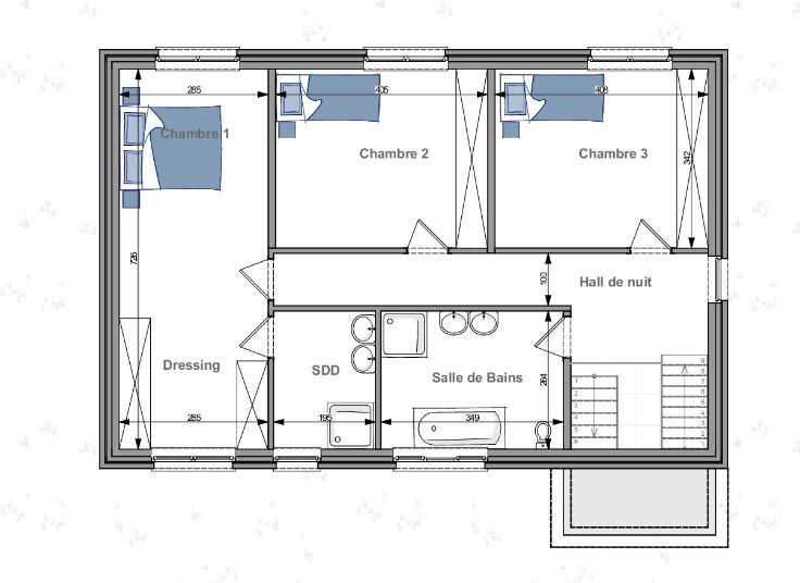
Laissez-vous séduire par ce nouveau projet d'une construction 4 façades dans le charmant village de Florrifoux sur un terrain doté d'une superficie de 876 m² (LOT N°5). De par sa situation idéale, proche de Suarlée et de Temploux, vous profiterez pleinement de votre construction en toute tranquillité. Maisons Compère vous propose une construction 4 façades +- 180 m² composé comme suit : Au rdc, se trouve, une buanderie, un très grand séjour et une vaste cuisine. L'étage est composé comme suit : Vous retrouverez 3 chambres, dressing et 1 sdb avec bain et douche. Prix du terrain + la construction : 390.000.00 € HTVA. Lot 1 surface habitable de 200m² - superficie terrain de 814 m² - VENDU. Lot 2 surface habitable de 190m² - superficie de terrain de 903 m² - au prix de 390.000,00 € htva.VENDU Lot 3 surface habitable de 190m² - superficie de terrain de 873 m² - au prix de 385.000,00 € htva VENDU Lot 4 VENDU Lot 5 voir ci-dessus Lot 6 surface habitable de 170m² - superficie de terrain de 895 m² - au prix de 385.000,00 € htva Lot 7 surface habitable de 180m² - superficie de terrain de 1.049 m² - au prix de 390.000,00 € htva.VENDU Pour ce projet !! MAISONS COMPÈRE VOUS OFFRE 10 PANNEAUX PHOTOVOLTAÏQUES !! Intéressé par ce projet ? Monsieur Mariani reste joignable au 0475/23.62.76 Le prix indiqué est ferme, définitif et sans indexation, les images
Type vastgoed Huis
Prijs 385.000
Bewoonbare opp. 180
Aantal slaapkamers 3