Te koop LIEDTS DISTRICT / GARE DU NORD BEGANE GRON...

Beschrijving van   

Vergelijk realty's

Te koop LIEDTS DISTRICT / GARE DU NORD BEGANE GROND TUIN 1CH

LIEDTS DISTRICT / GARE DU NORD BEGANE GROND TUIN 1CH LIEDTS DISTRICT / GARE DU NORD BEGANE GROND TUIN 1CH LIEDTS DISTRICT / GARE DU NORD BEGANE GROND TUIN 1CH LIEDTS DISTRICT / GARE DU NORD BEGANE GROND TUIN 1CH LIEDTS DISTRICT / GARE DU NORD BEGANE GROND TUIN 1CH LIEDTS DISTRICT / GARE DU NORD BEGANE GROND TUIN 1CH
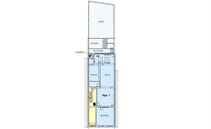
Dicht bij Place Liedts en Gare du Nord. Nabij winkels en openbaar vervoer. In een kleine mede-eigendom zonder gemeenschappelijke lasten biedt J&S Properties u een aangenaam appartement op de begane grond volledig gerenoveerd van ± 100m² aan dat als volgt is samengesteld; woonkamer, eetkamer ± 52m², volledig ingerichte keuken, slaapkamer ± 21m², douchekamer, WC, terras ± 15m², tuin ± 60m². Het pand heeft ook een kelder. Info & bezoeken; 02 / 538.02.58 of info@jsproperties.be
Type vastgoed Appartement
Prijs Op aanvraag
Bewoonbare opp. 100
Aantal slaapkamers 1
Aantal badkamers 1