Te huur Project Singelberg te Kieldrecht

Beschrijving van   

Vergelijk realty's

Te huur Project Singelberg te Kieldrecht

Project Singelberg te Kieldrecht Project Singelberg te Kieldrecht Project Singelberg te Kieldrecht Project Singelberg te Kieldrecht Project Singelberg te Kieldrecht Project Singelberg te Kieldrecht Project Singelberg te Kieldrecht
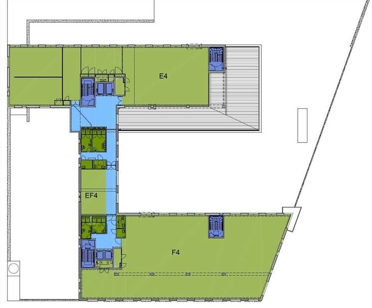
Het geheel van gebouwen zal in de eindfase meer dan 17.000 m² flexibele kantoorruimte tellen. De kantoren worden casco opgeleverd en zijn naar keuze in te richten als landschapskantoren of individuele kantoren. Door de vele glaspartijen, voorzien van zonneschermen, hebben alle kantoren een prachtig zicht op de Schelde. Om de monofunctionaliteit van de site te doorbreken, worden aan de kantoorruimten gemeenschappelijke en publieksvoorzieningen toegevoegd, zoals een cafetaria, een restaurant, een park, waterpartijen,... Archiefruimten zijn beschikbaar aan € 70/m²/j Provisie voor privatieve kosten bedragen ongeveer € 13/m²/jaar Eventueel nog te voorzien door de gebruiker: stroom- en databekabeling, scheidingswanden .
Type vastgoed Commercieel
Prijs 9.544
Bewoonbare opp. 836