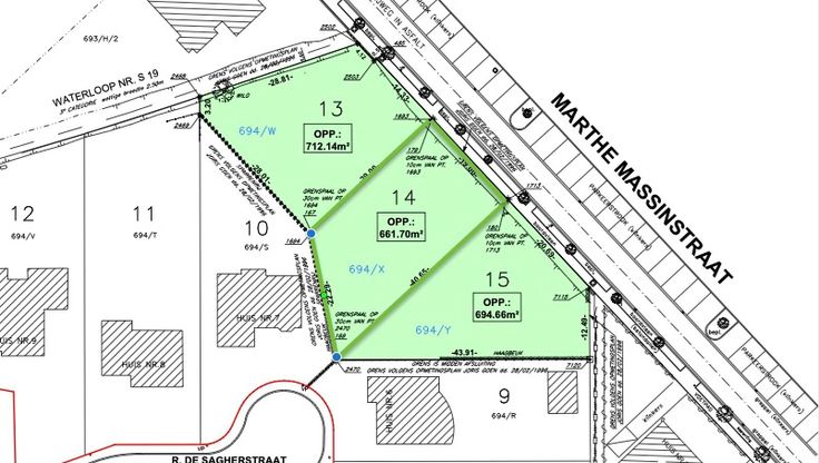
Te koop Bouwgrond voor open bebouwing op 661m2

Beschrijving van   

Vergelijk realty's

Te koop Bouwgrond voor open bebouwing op 661m2

Bouwgrond voor open bebouwing op 661m2 Bouwgrond voor open bebouwing op 661m2 Bouwgrond voor open bebouwing op 661m2 Bouwgrond voor open bebouwing op 661m2 Bouwgrond voor open bebouwing op 661m2 Bouwgrond voor open bebouwing op 661m2 Bouwgrond voor open bebouwing op 661m2 Bouwgrond voor open bebouwing op 661m2 Bouwgrond voor open bebouwing op 661m2
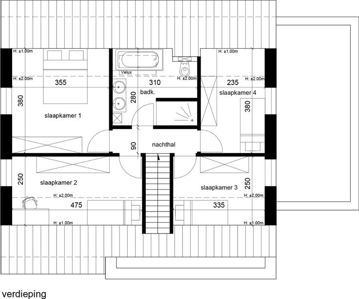
Ben je op zoek naar een ideale plek om je droomhuis te bouwen? Deze bouwgrond van 661 vierkante meter in de Marthe Massinstraat biedt volop mogelijkheden! Gelegen in hartje Sint-Amands op minder als een kilometer van de kaai, dichtbij alle voorzieningen. Alle nutsvoorzieningen zijn reeds aanwezig en is er ook een attest van een sondering beschikbaar! Op de foto's is er een projectie getoond van een woning die daar gebouwd kan worden. U kan uiteraard volgens de voorschriften zelf uw woning laten ontwerpen. Neem gerust contact met ons op voor meer info. 052/46.38.03
Type vastgoed Grond
Prijs 568.000