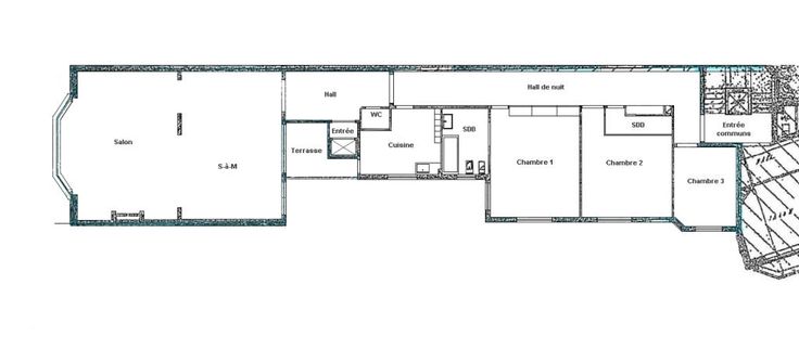
Aan de Louizalaan bieden wij u een prachtig luxe appartement aan, genesteld op de 5de verdieping met lift (komt rechtstreeks in het appartement), met een bruto oppervlakte van 203m² (PEB) als volgt: inkomhal op parketvloer, woonkamer van 65m² op parketvloer met open haard en toegang tot het zuidgerichte terras van 7m², aparte hyperuitgeruste keuken van 10.5m² die eveneens toegang geeft tot het terras, apart toilet met LM, nachthal, dressing, ouderlijke slaapkamer (20,5m²) met en-suite badkamer, een slaapkamer van 17,5m² en een derde slaapkamer van 11,7m².5m² die eveneens toegang geeft tot het terras, apart toilet met LM, nachthal, dressing, ouderlijke slaapkamer (20,5m²) met en-suite badkamer, een slaapkamer van 17,5m² en een derde slaapkam er van 11,7m², elk met massieve parketvloer, douchekamer. In zeer goede staat. Erg licht. Aangevuld met een grote kelder en een dienstbodekamer op de 6e verdieping. Garage beschikbaar voor €45.000. Ideaal gelegen vlakbij Place Stéphanie en alle vervoers- en winkelmogelijkheden. Gemeenschappelijke kosten dekken het verbruik van verwarming, gemeenschappelijke ruimtes en mede-eigendom. EPB: E. Een must-see! : Kosten . : Tennis, Tram: m, Supermarkt, Metro: m, School: m, Kinderdagverblijf, Winkel, Sporthal, Bioscoop, Winkelcentrum: m, Bus: m . : Verf . : Parket, Vloertegel . : Dubbel glas . : Schoorsteen, Lift . : Vuur alarm, Videofoon, Telefoon kabel, Kabel TV . : EPC certificaat nb., CO² uitstoot: 60 Kg Co2m²an, Energie dienst: 247 kw