Te koop Luxe-studentenkamer met eigen badkamer in ...

Beschrijving van   

Vergelijk realty's

Te koop Luxe-studentenkamer met eigen badkamer in Residentie Noa

Luxe-studentenkamer met eigen badkamer in Residentie Noa Luxe-studentenkamer met eigen badkamer in Residentie Noa Luxe-studentenkamer met eigen badkamer in Residentie Noa Luxe-studentenkamer met eigen badkamer in Residentie Noa
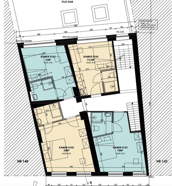
De locatie van Residentie Noa (Diestsestraat 144) maakt van deze investeringsunits een bijzonder interessante uitvalsbasis voor potentiële kopers/huurders. Een doorslaggevende troef is zonder meer de centrale ligging van het pand in hartje Leuven. Daardoor zit je in de onmiddellijke nabijheid van vele faculteiten en de historische binnenstad. Residentie Noa omvat 11 hoogwaardig afgewerkte luxe-studentenkamers op een bijzonder strategische toplocatie. Elke kamer heeft een eigen, moderne badkamer met douche, lavabo en hang-wc. Ook is er telkens een ontbijtblok voorzien in de kamer met een koelkast en microgolfoven. De gemeenschappelijke keuken (op het 2e verdiep) is volledig uitgerust met de nodige apparaturen. Beschreven prijs is exclusief meubelpakket, dit kan optioneel bijgekocht worden. Voor meer informatie over de investeringsmogelijkheden bij Syus kan u altijd contact opnemen via 016/670.670 of via info@syus.be. Voor meer informatie over het pand zelf verwijzen we graag door naar onze projectpagina: https://www.syus.be/project/residentie-noa/
Type vastgoed Appartement
Prijs 230.000
Bewoonbare opp. 18