Te koop Ruime nieuwbouwwoning met landelijke stijl

Beschrijving van   

Vergelijk realty's

Te koop Ruime nieuwbouwwoning met landelijke stijl

Ruime nieuwbouwwoning met landelijke stijl Ruime nieuwbouwwoning met landelijke stijl Ruime nieuwbouwwoning met landelijke stijl Ruime nieuwbouwwoning met landelijke stijl Ruime nieuwbouwwoning met landelijke stijl
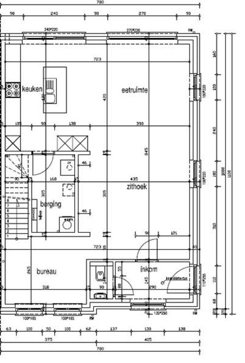
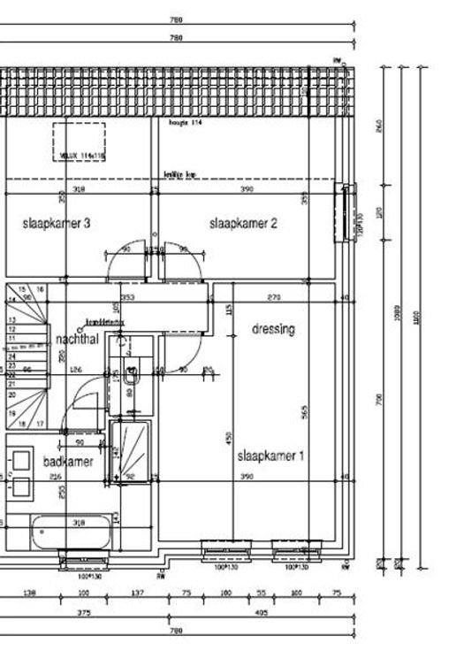
Twee nieuwe koppelwoningen in een recente verkaveling te Ingooigem, een dorp aan de voet van de Vlaamse Ardennen. De woningen hebben op het gelijkvloerse een inkom, toilet, ruime leefruimte met bureau, open keuken en een berging. Op de verdieping geeft de nachthal uit op 3 slaapkamers waarvan 1 met dressing, een badkamer en een afzonderlijk toilet. Op de verdieping is er een vaste trap naar de zolder die toegang geeft naar een mogelijke polyvalente ruimte of een 4de slaapkamer. De woningen worden heel energiezuinig geplaatst. Op het gelijkvloers werd gekozen voor vloerverwarming. De woningen krijgen een tijdloze landelijke stijl. Bij aankoop van de woning kunnen nog verschillende keuzes voor het interieur gemaakt worden. Zo kan u zelf nog de vloeren, de keuken, de badkamer enzovoort kiezen. Hiervoor werden reeds ruime budgetten voorzien. De ruwbouwwerken zijn reeds gestart. De woningen kunnen zowel sleutel op de deur als ruwbouw wind- en waterdicht aangekocht worden.
Type vastgoed Huis
Prijs 427.713
Bewoonbare opp. 207
Aantal slaapkamers 3
Aantal badkamers 1