Te koop Aankoop aan 6% btw mogelijk!

Beschrijving van   

Vergelijk realty's

Te koop Aankoop aan 6% btw mogelijk!

Aankoop aan 6% btw mogelijk! Aankoop aan 6% btw mogelijk! Aankoop aan 6% btw mogelijk! Aankoop aan 6% btw mogelijk! Aankoop aan 6% btw mogelijk! Aankoop aan 6% btw mogelijk!
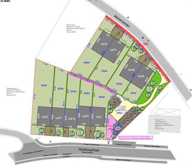
Ben je op zoek naar een moderne nieuwbouwwoning, die uitblinkt in duurzaamheid en afwerking? Ben je bovendien gecharmeerd door strakke architectuur en mooie uitvoeringsdetails? Dan bouwt Unicas de perfecte woning voor jou in Roosdaal! In Gasthuisveld, langsheen de Wolvenstraat in een gebied dat grenst aan de Gasthuisstraat, bouwt Unicas negen eigentijdse woningen, zes in halfopen en drie in gesloten verband, die zich allen onderscheiden door hun strakke architectuur. Alle woningen zijn zo ontworpen dat elke ruimte geniet van een optimale lichtinval. Bovendien beschikt elke woning over een ruime, volledig aangelegde tuin. Dit alles draagt bij tot een excellente woonkwaliteit, vermits ruimte vandaag de dag als pure luxe wordt ervaren. De woningen van Gasthuisveld beschikken allen over een ruime eetkamer en salon, volledig ingerichte keuken, berging en inpandige garage. Op de verdieping vinden we vier slaapkamers en één badkamer, al naargelang het woningtype. Zes van de negen woningen beschikken tevens over een afzonderlijke autostaanplaats, bovenop hun inpandige garage. Al de woningen zijn uitgerust met een vloerverwarmingssysteem op het gelijkvloers, voor een maximaal comfort. Bovendien worden de woningen voorzien van een balansventilatie type-D, en een set van 7 zonnepanelen. Onze Contacteer UNICAS voor meer info op 0488 300 301 of bezoek onze website op www.unicas.be ! Mogelijkheid om gedeeltelijk aan 6% BTW aan te kopen.
Type vastgoed Huis
Prijs 493.579
Bewoonbare opp. 167
Aantal slaapkamers 4
Aantal badkamers 1