Te koop KMO-unit in Alleur

Beschrijving van   

Vergelijk realty's

Te koop KMO-unit in Alleur

KMO-unit in Alleur KMO-unit in Alleur KMO-unit in Alleur KMO-unit in Alleur KMO-unit in Alleur KMO-unit in Alleur
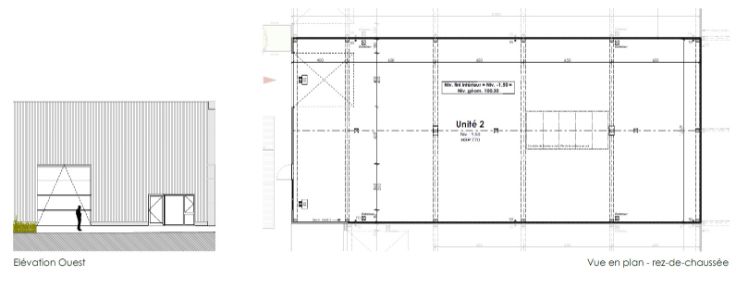
KMO-unit ideaal gelegen in de PAE van Alleur, dicht bij de snelweg en het knooppunt van de snelweg van Loncin. 1 sectionaaldeur, 5 parkeerplaatsen, vrije hoogte van 7m40. Regenwaterherstel. Casco geleverd (mogelijkheid om op aanvraag af te werken). Prijzen zijn exclusief belasting.
Type vastgoed Commercieel
Prijs 520.613
Bewoonbare opp. 414