Te koop Huis

Beschrijving van   

Vergelijk realty's

Te koop Huis

Huis Huis Huis Huis
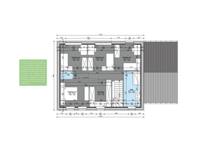
Opportunité unique à Marchin ! Nous vous présentons les dernières maisons disponibles dans notre nouveau lotissement, parfaites pour les acheteurs et investisseurs. Situé dans un quartier tranquille et verdoyant, ce lotissement est facilement accessible via une route peu fréquentée, et se trouve à proximité immédiate des espaces verts. Grâce à un accès rapide à l’E42, vous pouvez rejoindre rapidement les grandes villes comme Liège et Namur. Ces maisons, à quatre façades et jointives, disposent de 3 à 4 chambres, d’un garage, d’un parking, et de belles parcelles de terrain, le tout à des prix très compétitifs au m². Profitez des commodités de la vie urbaine tout en restant à l'écart du centre de Huy. Ne ratez pas cette occasion! Conditions exceptionnelles pour notre 40ème anniversaire Vous envisagez d’acquérir un nouveau bien ? Recevez 600€/mois pendant 12 mois ou 300€/mois pendant 24 mois, au choix ; afin de vous aider à gérer votre budget de la meilleure manière. Vous investissez ? Nous vous offrons des conditions financières sur mesures et un service gratuit de location de votre nouvel achat immobilier pour une période de 24 mois. Votre conseillé local Général Construction vous donnera toutes les explications et répondra à vos éventuelles interrogations. Notre intérêt est le vôtre, être à vos côtés pour démarrez le plus sereinement votre nouvel investissement dans les meilleures conditions. Contactez-nous par téléphone au 04 361 62 10 ou par courriel via info@gc.be.
Type vastgoed Huis
Prijs 355.400
Bewoonbare opp. 190
Aantal slaapkamers 4
Aantal badkamers 1