Te huur Woestijnstraat 13 - Bornem

Beschrijving van   

Vergelijk realty's

Te huur Woestijnstraat 13 - Bornem

Woestijnstraat 13 - Bornem Woestijnstraat 13 - Bornem Woestijnstraat 13 - Bornem Woestijnstraat 13 - Bornem Woestijnstraat 13 - Bornem Woestijnstraat 13 - Bornem Woestijnstraat 13 - Bornem
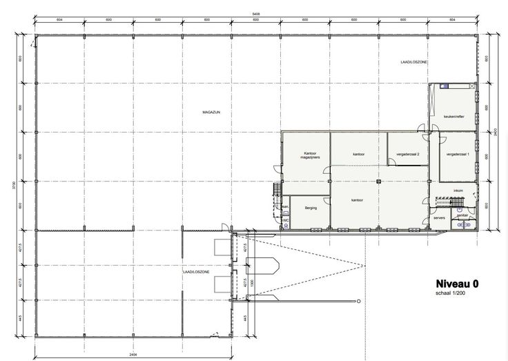
Semi-industrieel pand, gelegen op een strategische locatie, tussen de E17 en de E19, bestaande uit een opslagruimte met 2 laad- en loskades, 2 elektrsiche sectionaal poorten voor vrachtwagens en een aantal kantoren en vergaderruimtes. Omheinde site en verharde buitenruimte met veel parking mogelijkheden.
Type vastgoed Commercieel
Prijs 10.000
Bewoonbare opp. 2078