Te koop appartement

Beschrijving van   

Vergelijk realty's

Te koop appartement

appartement appartement appartement appartement appartement appartement appartement appartement appartement appartement appartement
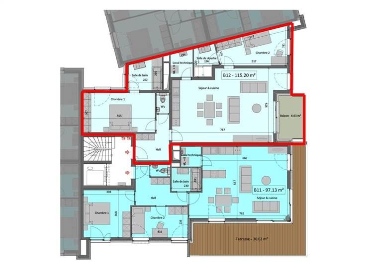
Sorry er is geen nederlandse vertaling beschikbaar. Rue Defuisseaux, B12 – 7333 Tertre Découvrez cet appartement neuf et de standing situé au 1er étage de la résidence le Grand Angle, offrant un cadre de vie lumineux et moderne. Situé dans une zone privilégiée, cet appartement est idéal pour ceux qui recherchent confort et proximité des commodités, ainsi qu'une excellente opportunité d'investissement. En entrant, vous serez accueilli par un hall desservant une première chambre de 17 m² avec sa propre salle de bains de 6m², ainsi qu’un vaste séjour de 45 m², baigné de lumière naturelle, s'ouvrant sur un balcon de 6m², parfait pour se détendre. Une deuxième chambre de 17 m² avec sa propre salle de douches de 4m² et un local technique complète cet appartement L'appartement comprend également deux emplacements de parking, ajoutant une commodité précieuse à votre quotidien. À seulement 15 minutes en voiture de Mons, vous bénéficierez de la proximité d’une grande ville avec ses nombreux commerces, écoles et loisirs. La gare de Saint-Ghislain est également à seulement 6 minutes, facilitant vos déplacements. Profitez d'un cadre de vie agréable avec toutes les facilités à portée de main. PEB A RC pas encore déterminé. Cet appartement est vendu sous régime TVA, avec un prix de 244.000 € HTVA et deux emplacements de parking à 14.887 € TVAC. Investisseurs, ne passez pas à côté ! Avec sa situation privilégiée
Type vastgoed Appartement
Prijs 244.000
Bewoonbare opp. 115
Aantal slaapkamers 2