Te huur Recent luxe appartement in privé behuizing.

Beschrijving van   

Vergelijk realty's

Te huur Recent luxe appartement in privé behuizing.

Recent luxe appartement in privé behuizing. Recent luxe appartement in privé behuizing. Recent luxe appartement in privé behuizing. Recent luxe appartement in privé behuizing. Recent luxe appartement in privé behuizing. Recent luxe appartement in privé behuizing. Recent luxe appartement in privé behuizing. Recent luxe appartement in privé behuizing. Recent luxe appartement in privé behuizing. Recent luxe appartement in privé behuizing. Recent luxe appartement in privé behuizing.
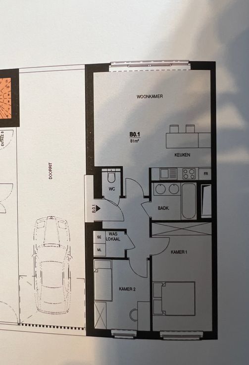
Dit appartement is gelegen op het gelijkvloers van de Residentie Rivieren, gelegen in een privé-omgeving, zeer nabij het centrum van Ganshoren, een charmante woonwijk, en het openbaar vervoer en de Brusselse ring binnen handbereik (50 m van tramhalte 9 te de Centenaire, het treinstation van Jette op 15 min lopen) en niet te vergeten de zondagsmarkt van Jette op 500 m op het Koningin Astridplein. Het appartement van 81m2 bestaat uit een grote woonkamer van 30m2 bestaande uit woonkamer, eetkamer en hyper-ingerichte Amerikaanse keuken, een nachthal, 2 slaapkamers (15m2 en 10m2), een badkamer, een toilet, een korting, en een groot terras van 17m2. Inpandige parkeerplaats en kelder verplicht bij huur: € 100/maand.
Type vastgoed Appartement
Prijs 1.280
Aantal slaapkamers 2
Aantal badkamers 1