Te koop IDEALE STARTERSWONING MET GROTE TUIN

Beschrijving van   

Vergelijk realty's

Te koop IDEALE STARTERSWONING MET GROTE TUIN

IDEALE STARTERSWONING MET GROTE TUIN IDEALE STARTERSWONING MET GROTE TUIN IDEALE STARTERSWONING MET GROTE TUIN IDEALE STARTERSWONING MET GROTE TUIN IDEALE STARTERSWONING MET GROTE TUIN IDEALE STARTERSWONING MET GROTE TUIN IDEALE STARTERSWONING MET GROTE TUIN IDEALE STARTERSWONING MET GROTE TUIN IDEALE STARTERSWONING MET GROTE TUIN IDEALE STARTERSWONING MET GROTE TUIN IDEALE STARTERSWONING MET GROTE TUIN IDEALE STARTERSWONING MET GROTE TUIN IDEALE STARTERSWONING MET GROTE TUIN
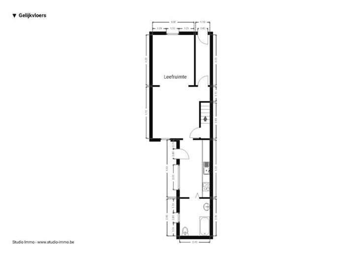
Ben je op zoek naar een woning die je volledig naar eigen smaak kunt opfrissen? Deze charmante woning, gelegen tussen Brasschaat en Maria ter Heide, biedt jou de ideale kans. Met scholen, winkels en de autostrade vlakbij, geniet je van een centrale ligging in een rustige, groene omgeving. Indeling van de woning: Inkomhal: Lichte inkomhal op tegelvloer die leidt naar de leefruimte. Leefruimte: Gezellige woonkamer met tegelvloer, ideaal om te ontspannen. Keuken: Functionele keuken met toegang tot de tuin. Badkamer: Badkamer met bad, lavabo en toilet, klaar voor een persoonlijke update. Eerste verdieping: Nachthal: Ruime nachthal met toegang tot twee slaapkamers. Slaapkamers: Twee slaapkamers van ±17m² en 16m² op laminaat. Extra's: Bergzolder: Handig voor opslag. Kelder: Ruime kelder van ±18m². Kruipruimte: Voorbereid voor centrale verwarming (momenteel gaskachels). Tuin: Grote tuin met tuinhuis en handige doorgang. Bijzonderheden: PVC en aluminium ramen met dubbel glas, dakisolatie, conforme elektriciteit. Een woning met veel potentieel op een toplocatie! Bel 03 535 12 75 voor een bezichtiging. BEWOONBARE OPPERVLAKTE De vermelde “bewoonbare oppervlakte” is gebaseerd op de “bruikbare vloeroppervlakte” zoals vermeld in het EPC. RENOVATIEPLICHT Gebouwen met een energielabel “E” of “F” zullen verplicht binnen de 5 jaar energetisch gerenoveerd moeten worden en dit zodat ze minstens over een energielabel “D” beschikken. Bij dit pand zal de renovatieplicht dus van toepassing zi
Type vastgoed Huis
Prijs 269.000
Bewoonbare opp. 101
Aantal slaapkamers 2
Aantal badkamers 1