Te koop NIEUW TE BOUWEN HOB OP PERCEEL VAN 999 m2

Beschrijving van   

Vergelijk realty's

Te koop NIEUW TE BOUWEN HOB OP PERCEEL VAN 999 m2

NIEUW TE BOUWEN HOB OP PERCEEL VAN 999 m2 NIEUW TE BOUWEN HOB OP PERCEEL VAN 999 m2 NIEUW TE BOUWEN HOB OP PERCEEL VAN 999 m2 NIEUW TE BOUWEN HOB OP PERCEEL VAN 999 m2 NIEUW TE BOUWEN HOB OP PERCEEL VAN 999 m2 NIEUW TE BOUWEN HOB OP PERCEEL VAN 999 m2 NIEUW TE BOUWEN HOB OP PERCEEL VAN 999 m2
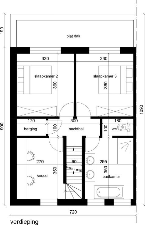
Prachtig nieuw te bouwen halfopen bebouwing op mooi stuk bouwgrond van 999 m², gelegen in een groene en rustige omgeving in Waasmunster. Nabij winkels, scholen, en recreatie. Uitstekende openbaarvervoerverbindingen en snelle toegang tot belangrijke uitvalswegen. Grijp deze kans en bouw uw droomhuis! Neem contact op met ons voor de bouwvoorschriften via het telefoonnummer: 052/46.38.03!
Type vastgoed Huis
Prijs 540.500