Te koop Bouwgrond

Beschrijving van   

Vergelijk realty's

Te koop Bouwgrond

Bouwgrond Bouwgrond Bouwgrond Bouwgrond Bouwgrond Bouwgrond Bouwgrond Bouwgrond Bouwgrond Bouwgrond Bouwgrond Bouwgrond Bouwgrond Bouwgrond
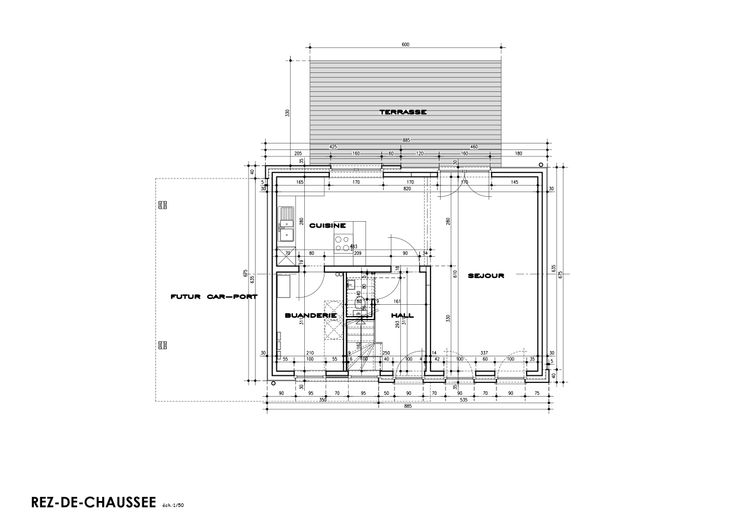
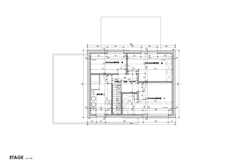
Ce projet est entièrement modulable selon vos envies et vos désirs. Nous avons le plaisir de vous présenter un terrain à bâtir inégalée, s'étendant sur une généreuse superficie de 884m², idéalement situé dans la pittoresque région de Wépion, se situant à Namur. Ce bien d'exception, vous offrira une façade de 21 mètres et une profondeur de 42 mètres. Il se distingue par sa situation privilégiée, à moins d'une minute d'un arrêt de bus et à moins de cinq minutes des commodités essentielles telles que les restaurants, supermarchés et stations-service. L'accès à l'autoroute E411, se trouve à seulement dix minutes, et vous permettra de rejoindre aisément les villes de Liège, Bruxelles et Charleroi. Nous vous proposons un projet séduisant 4 façades complété par un magnifique carport. Il se compose comme suit : Rez-de-chaussée : Un hall d'entrée accueillant vous accueillera pour vous conduire à un espace de vie lumineux, comprenant une cuisine moderne, une buanderie ainsi qu'une terrasse, le tout s'ouvrant sur le carport. L'étage : Un hall de nuit vous permettra d'accéder à 3 chambres à coucher confortables et à une salle de bain entièrement équipée. Ce projet est modulable selon vos envies et vos désirs. L'ensemble terrain + projet de construction pour un montant de 277.624,00 € HTVA, frais d'architecte et frais de notaire. Pour plus d'informations, nous vous invitons à nous contacter.
Type vastgoed Grond
Prijs 120.000