Te huur Volledig energetisch vernieuwde studio met...

Beschrijving van   

Vergelijk realty's

Te huur Volledig energetisch vernieuwde studio met tuin

Volledig energetisch vernieuwde studio met tuin Volledig energetisch vernieuwde studio met tuin
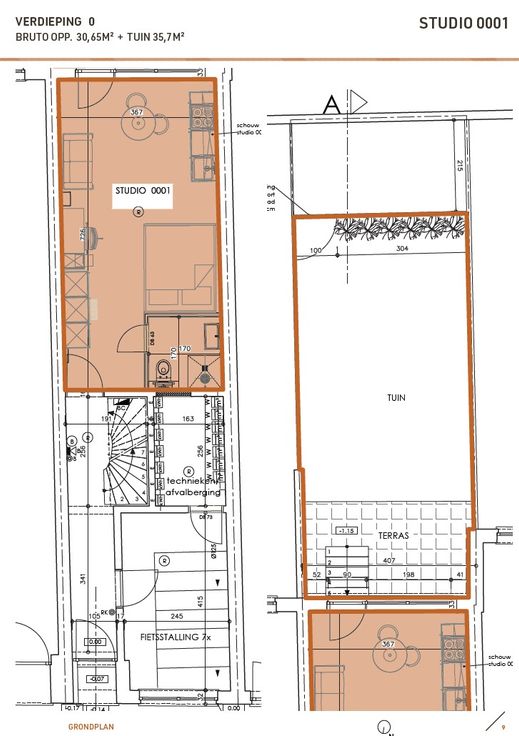
Ben je op zoek naar een moderne, instapklare studio met eigen tuin? Deze volledig gerenoveerde studio van 31 m² bevindt zich op het gelijkvloers van een kleinschalige residentie met slechts 7 units. De studio is uitgerust met alle comfort en duurzame voorzieningen, waaronder warmtepompen en zonnepanelen, waardoor je energiekosten laag blijven. Beschrijving: Volledig gemeubeld: bed, kleerkast, bureau met bijhorende stoel Uitgeruste keuken met alle nodige toestellen Zuidgericht terras met tuin voor optimaal zonlicht Interne fietsenstalling voor extra gemak Locatie en faciliteiten: De studio maakt deel uit van een rustige residentie Individuele meters voor elektriciteit en water Gemeenschappelijke kosten: €55/maand (exclusief water en elektriciteit) Huurprijs: €875/maand Beschikbaar vanaf: Ten vroegste 15 januari 2025 Ben je geïnteresseerd in een bezichtiging of wil je meer informatie? Neem dan snel contact op!
Type vastgoed Appartement
Prijs 875
Bewoonbare opp. 31
Aantal badkamers 1
Gemeubileerd YES