Te koop Nieuwbouwwoning nabij station Liedekerke

Beschrijving van   

Vergelijk realty's

Te koop Nieuwbouwwoning nabij station Liedekerke

Nieuwbouwwoning nabij station Liedekerke Nieuwbouwwoning nabij station Liedekerke Nieuwbouwwoning nabij station Liedekerke Nieuwbouwwoning nabij station Liedekerke Nieuwbouwwoning nabij station Liedekerke Nieuwbouwwoning nabij station Liedekerke
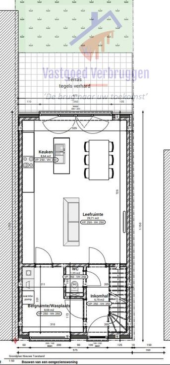
TE KOOP - NIEUWBOUWWONING LIEDEKERKE   (casco of sleutel-op-de-deur) Wordt dit uw droomwoning? Deze bouwgrond is gelegen in de Meersstraat in Liedekerke. Het perceel is georiënteerd naar het Westen met goedgekeurde plannen tot het bouwen van een gesloten bebouwing met gevelbreedte van +- 6 meter. De oppervlakte van het perceel is 139 m². Het perceel is goed gelegen, op slechts 300m van het station en nabij een parkje met speeltoestellen voor de kinderen. Een ideale ligging dus, ook voor wie dagelijks pendelt naar Brussel . In de buurt zijn heel wat winkels en scholen terug te vinden. De reeds goedgekeurde plannen slaan op het bouwen van een gesloten bebouwing met bewoonbare oppervlakte van 132m², met 3 slaapkamers. Het gelijkvloers telt een diepte van 11,5m, en de 1ste verdieping heeft een gelijke diepte. Daarenboven is er ook nog een zolderverdieping die ingericht kan worden naar wens. Ook is de tuin van de woning bereikbaar via de achterliggende straat (Appelboomstraat), waar een autostaanplaats kan geïntegreerd worden in de tuin. De aankoop van de grond valt onder de registratiewetgeving en de bouw van de woning - indien u voldoet aan de voorwaarden - onder de 6% BTW regeling! De opgegeven prijs betreft de casco-oplevering (wind- en waterdicht). U kan ook kiezen voor de volledig afgewerkte woning (sleutel op de deur - met bescherming van de Wet Breyne en bankwaarborg door het bouwbedrijf) aan een bedrag van 372.000 Euro excl kosten.(waarde ... Renovatieplicht: onbekend
Type vastgoed Huis
Prijs 290.000
Bewoonbare opp. 132
Aantal slaapkamers 3