Te koop Huis

Beschrijving van   

Vergelijk realty's

Te koop Huis

Huis Huis Huis Huis
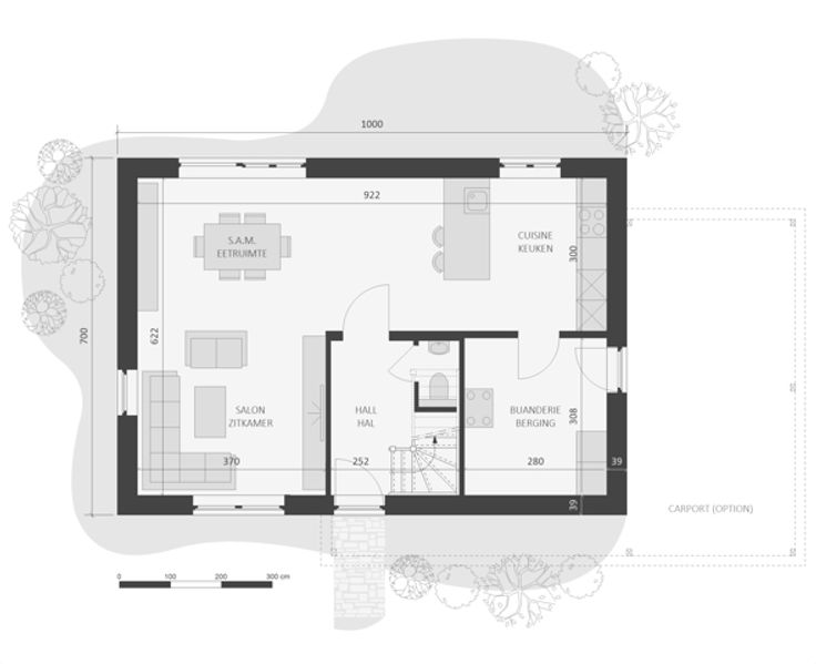
Nous vous proposons un projet de villa Qzen: Quasi Zéro Énergie, 100% traditionnelle. Cette villa affiche une performance énergétique de classe PEB A+, avec triple vitrage, 14 panneaux photovoltaïques et ventilation double flux. Le chauffage est assuré par le sol avec une pompe à chaleur. L'isolation comprend 14 cm pour les murs, 12 cm pour le sol et 44 cm pour la toiture. La maison est située sur un terrain de 812 m². La villa comprend un beau hall d’entrée, un salon-salle à manger, une cuisine non équipée, et une grande buanderie. À l’étage, elle offre 3 chambres, une salle de bains, appareils sanitaires et robinetterie inclus et un dressing. Les plans peuvent être modifiés et adaptés selon vos besoins, avec un grand choix de matériaux sans supplément. La maison est livrée clé sur porte, construite de manière 100% traditionnelle avec un cahier des charges complet. Nous vous invitons à découvrir, sur rendez-vous, notre splendide maison témoin de Chaumont-Gistoux, en semaine et le weekend. Contactez-nous au 02/556 47 56. Notre adresse : Chemin du Bonly en face du n°73, 1325 Chaumont-Gistoux. Le prix total du projet, TVA comprise, est de 428.930€. Ce prix fixe inclut la construction, l’architecte, le terrain, les frais de notaire, un budget raccordements de 5.000€, une réserve pour fondation de 15.000€, l’essai de sol, l’ingénieur, l’étude de stabilité, la PEB et le coordinateur sécurité. Pour plus d’informations, consultez www.teamconstruct.be ou appelez le 02/556 47 56.
Type vastgoed Huis
Prijs 353.177
Bewoonbare opp. 140
Aantal slaapkamers 3
Aantal badkamers 1