Te koop Huis

Beschrijving van   

Vergelijk realty's

Te koop Huis

Huis Huis Huis Huis Huis Huis Huis Huis Huis Huis Huis Huis Huis Huis Huis Huis Huis Huis Huis Huis Huis
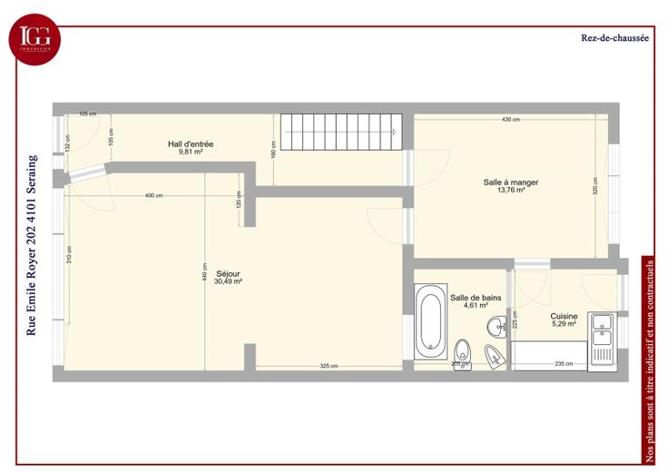
Grande maison uni familiale à rénover sur la commune de Jemeppe-sur-Meuse (Seraing), elle se compose comme suit : Au RDC: Un hall d'entrée desservant un grand séjour (salon-SAM), un espace cuisine, une arrière cuisine avec accès à la terrasse et au jardin, une salle de bain avec WC. Au 1er deux belles chambres. Au 2ième deux chambres mansardée et un espace anciennement utilisé pour du stockage mais qui pourrait être aménagé en dressing ou petite salle de douche. Le bien dispose aussi de caves très saine qui constituent un endroits de stockage idéal. Châssis DV ALU, électricité à revoir, chauffage individuel par poêle à gaz, RC: 493€, PEB F , possibilité d'acquérir un garage dans une rue adjacente moyennant supplément à négocier. Située à proximité du centre de Jemeppe-sur-Meuse et ses nombreuses commodités (école, commerces, axes autoroutiers) cette maison n'attends que vos idées pour être réaménagée.
Type vastgoed Huis
Prijs Op aanvraag
Bewoonbare opp. 140
Aantal slaapkamers 4