Te koop 2 slaapkamer app gelijkvloers interessant ...

Beschrijving van   

Vergelijk realty's

Te koop 2 slaapkamer app gelijkvloers interessant als investering

2 slaapkamer app gelijkvloers interessant als investering 2 slaapkamer app gelijkvloers interessant als investering 2 slaapkamer app gelijkvloers interessant als investering
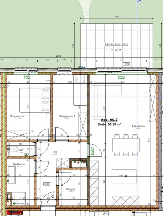
Dit prachtig 2 slaapkamer appartement met terras is gelegen op het gelijkvloers. Dit appartement bestaat uit: • Inkomhal met plaats voor een vestiaire kast • Apart hangtoilet en handwasbakje • Berging met aansluiting voor wasmachine en droogkast • Badkamer met douche en 2 pers lavabo meubel met spiegel en verlichting • 2 slaapkamers • Grote leefruimte met toegang tot het terras (14,4m²) • Ingerichte keuken met kookplaat, oven, koelkast, spoeltafel en dampkap • De open keuken, eetplaats en leefruimte worden via grote ramen voorzien van voldoende daglicht • Eigen zonnepanelen • Vloerverwarming • Eigen warmtepomp • Bereikbaar met lift • Verder heeft het project een gezellige gemeenschappelijke tuin, een afvalberging en voldoende berging voor de fietsen zowel ondergronds als bovengronds. Ondergrondse parkeerplaats, garagebox of berging kan aangekocht worden maar is geen verplichting. Er zijn ook verschillende bovengrondse parkeerplaatsen. Specifiek voor investeerders bieden wij een huurgarantie van 2 jaar! Bij interesse kan u ons gerust, vrijblijvend, contacteren voor meer info of een afspraak. Wij zijn bereikbaar via email op evi@dcvlaarne.be of via 0475 50 40 08.
Type vastgoed Appartement
Prijs 311.643
Bewoonbare opp. 96
Aantal slaapkamers 2
Aantal badkamers 1