Te koop Projectgrond voor 5 appartementen + gezins...

Beschrijving van   

Vergelijk realty's

Te koop Projectgrond voor 5 appartementen + gezinswoning te Jette

Projectgrond voor 5 appartementen + gezinswoning te Jette Projectgrond voor 5 appartementen + gezinswoning te Jette Projectgrond voor 5 appartementen + gezinswoning te Jette Projectgrond voor 5 appartementen + gezinswoning te Jette Projectgrond voor 5 appartementen + gezinswoning te Jette Projectgrond voor 5 appartementen + gezinswoning te Jette
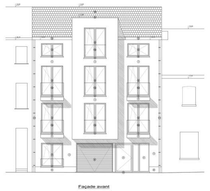
Voor meer informatie of een uitgebreide beschrijving, consulteer onze website: https://www.homerun.immo/nl/bouwgrond-projecten-te-koop-in-jette/5605405 Deze projectgrond is uitstekend gelegen in een rustige straat. Het Koning Boudewijnpark bevindt zich pal achter de woning. Deze projectgrond bestaande uit volgende onderdelen: ▪️ een bouwgrond van 190m² ▪️ garage op een perceel van 40ca ▪️ gezinswoning (Rue Antoine Baeck 107) op een perceel van 110m² Voor de bouwgrond werd er reeds een volledig projectdossier opgemaakt door een architect en ingediend bij de gemeente Jette. Het nieuwbouwproject omvat 5 eenheden: ▪️ 1 studio ▪️ 1 appartement met 1 slaapkamer ▪️ 2 appartementen met 2 slaapkamers ▪️ 1 appartement met 3 slaapkamers Plannen van het bouwproject kunnen op ons kantoor ingekeken worden. Voorzieningen in de omgeving: Carrefout Express (554m), apotheek 519m, verschillende scholen op 200m, park achter de woning Bereikbaarheid: Bushalte Eugène Toussaint (275m), Tramhalte Exposition (164m), Treinstation Jette (723m), Metro Houba-Brugmann (1.7km) Voordelen: dossier is reeds volledig opgemaakt, plannen zijn uitgetekend, mogelijkheid tot uitbreiden van het nieuwbouwproject, uitstekende groen en kalme wijk, alle nodige voorzieningen in de omgeving en uitstekende verbinding Voor meer informatie, een bezoek of een schatting, contacteer Bart via bart@homerun.immo of 0476 64 31 06
Type vastgoed Grond
Prijs 729.000