Te koop Huis

Beschrijving van   

Vergelijk realty's

Te koop Huis

Huis Huis Huis Huis Huis Huis Huis Huis Huis Huis Huis Huis Huis Huis Huis Huis Huis Huis Huis
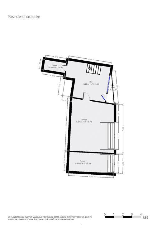
Jolie maison à rénover située sur la paisible commune de Neuville-en-Condroz, elle se compose d''un spacieux hall d''entrée, d''un débarras, un beau séjour donnant accès à la salle à manger, une cuisine meublée, trois belles chambres, , une salle de bain, un garage, une annexe pouvant servir de petit entrepôt avec étage et un beau jardin. Châssis double vitrage bois,chauffage central au mazout, toiture d''époque mais en état, électricité à revoir, PEB G, RC : 1132€. Volume intèressant à exploité ! Cette maison n''attends plus que vos idées pour être réaménagé ! A visiter avant qu''il ne soit trop tard ! Faire Offre !
Type vastgoed Huis
Prijs Op aanvraag
Aantal slaapkamers 3
Aantal badkamers 1