Te koop Woning

Beschrijving van   

Vergelijk realty's

Te koop Woning

Woning Woning Woning Woning Woning Woning Woning Woning Woning Woning Woning Woning Woning Woning Woning Woning Woning Woning Woning Woning Woning Woning
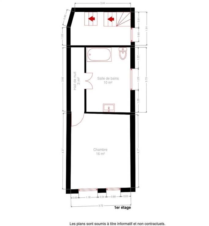
Sorry er is geen nederlandse vertaling beschikbaar. SOUS OPTION Jolie maison située au centre-ville, à proximité de toutes les commodités, se composant comme suit : Au rez-de-chaussée, un salon de 16m², une salle à manger - cuisine équipée de 18m², une buanderie et une toilette. Au 1er étage, un hall de nuit, une chambre de 16m² et une salle de bains de 10m². Au 2ème étage, une chambre studio de 28m² avec coin cuisine et une salle de douche. Au sous-sol , 2 caves. A l'extérieur, une cour de 10m².
Type vastgoed Huis
Prijs 265.000
Bewoonbare opp. 133
Aantal slaapkamers 2
Aantal badkamers 1