Te koop UNIEKE OPBRENGSTEIGENDOM NABIJ ZEE & STRAN...

Beschrijving van   

Vergelijk realty's

Te koop UNIEKE OPBRENGSTEIGENDOM NABIJ ZEE & STRAND WENDUINE-DE HAA

UNIEKE OPBRENGSTEIGENDOM NABIJ ZEE & STRAND WENDUINE-DE HAA UNIEKE OPBRENGSTEIGENDOM NABIJ ZEE & STRAND WENDUINE-DE HAA UNIEKE OPBRENGSTEIGENDOM NABIJ ZEE & STRAND WENDUINE-DE HAA UNIEKE OPBRENGSTEIGENDOM NABIJ ZEE & STRAND WENDUINE-DE HAA
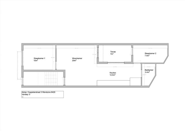
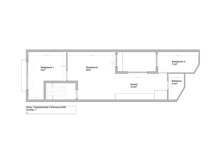
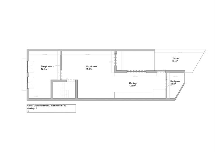
BEZOEKMOMENT ZATERDAG 28 SEPTEMBER, MAAK NU UW AFSPRAAK Op boogscheut strand, zee, shopping en openbaar vervoer vindt u deze compleet gerenoveerde opbrengsteigendom terug. Deze herenwoning werd volledig gestript en kwalitatief heropgebouwd volgens de regels der kunst! Achter deze knap gerestaureerde beschermde gevel bevinden zich 3 entiteiten: Het gelijkvloerse verdiep omvat een twee-slaapkamer appartement met stadsterrasje. Op de eerste verdieping bevindt zich eveneens een lichtrijk twee slaapkamer appartement, maar met balkon. De bovenste verdieping bevat een lichtrijk één-slaapkamer appartement met leuk dakterras. Zowel algemene delen als appartementen werden elk energetisch afgewerkt met duurzame materialen zoals parket in massieve eik, Italiaanse douche, mortex,... In combinatie met de authentieke gevel en hoge plafonds is dit werkelijk een vastgoed-pareltje. Nog op zoek naar uw magnifiek gerenoveerde unieke opbrengsteigendom? Maak nu uw afspraak via eva@vastgoedvanhoye.be of michiel@vastgoedvanhoye.be of via 059/43.43.00
Type vastgoed Huis
Prijs 650.000
Bewoonbare opp. 65
Aantal slaapkamers 2
Aantal badkamers 1