Te koop Huis

Beschrijving van   

Vergelijk realty's

Te koop Huis

Huis Huis Huis Huis
Renovatieplicht: nee
Type vastgoed Huis
Prijs Op aanvraag
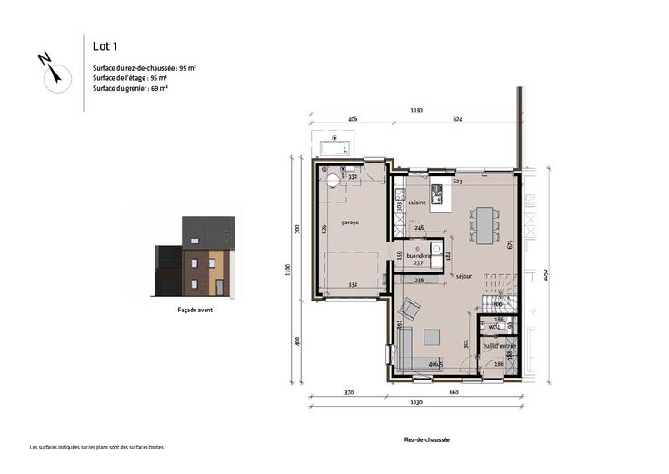
Bewoonbare opp. 260
Aantal slaapkamers 4
Aantal badkamers 2