Te koop Huis

Beschrijving van   

Vergelijk realty's

Te koop Huis

Huis Huis Huis Huis Huis Huis Huis Huis Huis Huis Huis Huis
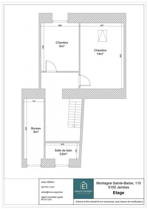
Sorry er is geen nederlandse vertaling beschikbaar. VENDU - Vous êtes à la recherche d'une habitation dans laquelle il n'y a plus qu'à y déposer vos valises? Ne cherchez plus! INNOV'EXPERT immobilière vous invite à venir découvrir cette superbe maison 4 chambres entièrement rénovée, située à proximité directe de toutes les commodités (commerces, écoles, transports en commun, ..). Elle vous séduira par ses volumes inattendus et son agencement idéal. PAS D'EXTERIEURS. Composition au rez : séjour, cuisine équipée, WC séparé. 1er étage : hall de nuit, 3 chambres, salle de douche avec WC. 2ème étage : chambre. Belle opportunité à ne pas manquer sur Jambes, n'hésitez pas à nous contacter au 081 84 90 57
Type vastgoed Huis
Prijs Op aanvraag
Aantal slaapkamers 4
Aantal badkamers 1