Te koop Praktijkwoning met groot potentieel

Beschrijving van   

Vergelijk realty's

Te koop Praktijkwoning met groot potentieel

Praktijkwoning met groot potentieel Praktijkwoning met groot potentieel Praktijkwoning met groot potentieel Praktijkwoning met groot potentieel
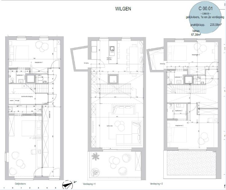
Nieuwbouwwoning van 236 m² in casco staat (wind- en waterdicht) met groot potentieel (eigen bewoning, praktijkwoning, woonst opdeelbaar in co-livingproject met meerdere kamers mits het verkrijgen van goedgekeurde vergunning, ...) met buitenruimte van 67 m². Plan als mogelijke indeling. Mogelijkheid tot aankoop parkeerplaatsen in de ondergrondse parking. Voor meer info of een afspraak: 03 226 86 41 of verkoop@caaap.be
Type vastgoed Commercieel
Prijs 415.000
Bewoonbare opp. 236