Te koop Energieneutrale HOB met 3 slpks en mogelij...

Beschrijving van   

Vergelijk realty's

Te koop Energieneutrale HOB met 3 slpks en mogelijkheid carport

Energieneutrale HOB met 3 slpks en mogelijkheid carport Energieneutrale HOB met 3 slpks en mogelijkheid carport Energieneutrale HOB met 3 slpks en mogelijkheid carport Energieneutrale HOB met 3 slpks en mogelijkheid carport
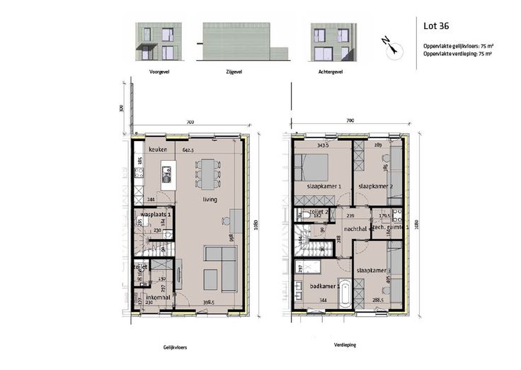
Op deze topligging naast het Park Claeys-Bouüaert realiseren we een nieuwe verkaveling langsheen de Petrus Meirestraat te Mariakerke. Deze energiezuinige woningen in moderne stijl vormen een harmonieus geheel in drie kleurtinten. Gevarieerd aanbod zoals woningen met 3 tot 5 slpks, garage, carport of parkeerplaats. Deze halfopen beb. op lot 36 wordt gebouwd op een perceel van 325 m². De tuinomheining met poortje wordt mee voorzien. GLVLS: inkom, wc, vestiaire, ruime living  met veel lichtinval en ingerichte keuken met eiland. Mogelijkheid tot voorzien van carport. 1ste VERD.: 3 slpks, wc, badk. met ligbad, douche en badmeubel met dubbele lavabo en berging. Voor de binnenafwerking kan je rekenen op de begeleiding én expertise van ons team en onze partners. Energieneutrale woning (E-peil -17!) dankzij het doorgedreven isolatiepakket, warmtepomppanelen (PVT)  met vloerverwarming en ventilatiesysteem D. Hiermee voldoet deze woning dus aan alle normen voor de toekomst en bespaar je op je woonkost. De prijs is excl. btw en kosten. Download de brochure op https://durabrik.immo/mariakerke - Heb je vragen? Contacteer dan je bouwadviseur via 0800 62 732 of mail naar info@durabrik.be. Inspiratie opdoen? Ontdek onze kijkwoningen op https://www.durabrik.be/nl/kijkwoningen * Afbeeldingen en oppervlaktes zijn indicatief. Renovatieplicht: nee
Type vastgoed Huis
Prijs 468.500
Bewoonbare opp. 151
Aantal slaapkamers 3
Aantal badkamers 1