Te koop Semi-industriële site te koop/te huur in E...

Beschrijving van   

Vergelijk realty's

Te koop Semi-industriële site te koop/te huur in Evere

Semi-industriële site te koop/te huur in Evere Semi-industriële site te koop/te huur in Evere Semi-industriële site te koop/te huur in Evere Semi-industriële site te koop/te huur in Evere Semi-industriële site te koop/te huur in Evere Semi-industriële site te koop/te huur in Evere Semi-industriële site te koop/te huur in Evere
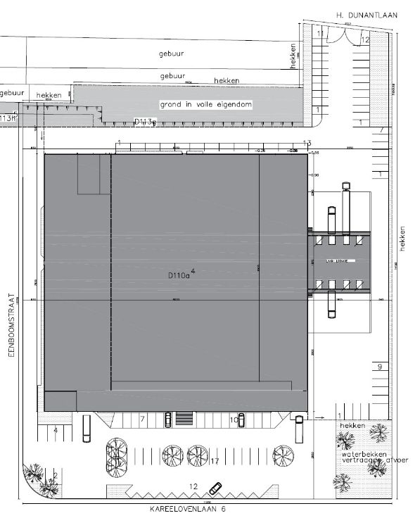
Unieke Opportuniteit: Semi-industriële site te koop/te huur gelegen in Evere, in de nabijheid van de snelweg E40 en op slechts +/- 20 minuten van het stadscentrum van Brussel. Deze site beschikt over een magazijn van 6146m² en 1383m² kantoren verdeeld over de gelijkvloers en de eerste verdieping. Met voldoende buitenruimte en parkeergelegenheid biedt dit pand een ideale kans voor onder andere industriële ondernemingen. Verken het potentieel van deze strategisch gepositioneerde site, waar functionaliteit en toegankelijkheid samenkomen. Huurprijs : €420.000 / jaar - verkoopprijs : €4.106.000. Terrein in erfpacht bij CityDev.
Type vastgoed Commercieel
Prijs 4.106.000
Bewoonbare opp. 7572