Te koop Vente - Appartement Laeken

Beschrijving van   

Vergelijk realty's

Te koop Vente - Appartement Laeken

Vente - Appartement Laeken Vente - Appartement Laeken Vente - Appartement Laeken Vente - Appartement Laeken Vente - Appartement Laeken Vente - Appartement Laeken
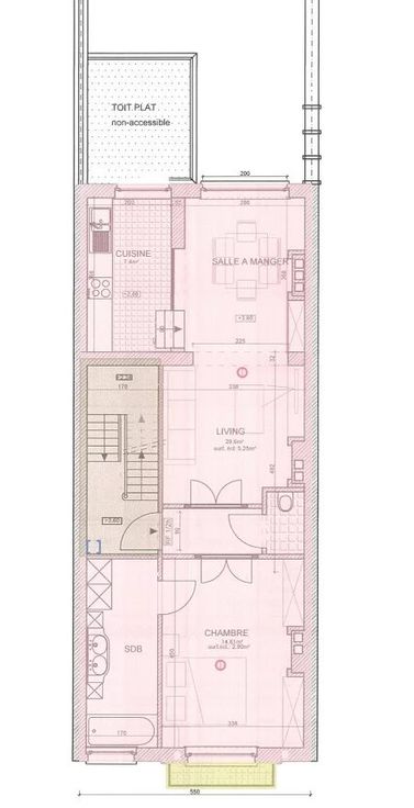
LAEKEN, vlakbij Pannenhuis, ontdek een appartement gelegen in een kleine eigendom, op de eerste verdieping en als volgt samengesteld; een woonkamer, een eetkamer, een aparte keuken, een slaapkamer, een badkamer, momenteel verhuurd, bezoeken op afspraak, EPC E+
Type vastgoed Appartement
Prijs 185.000
Bewoonbare opp. 68
Aantal slaapkamers 1