Te huur Appartement

Beschrijving van   

Vergelijk realty's

Te huur Appartement

Appartement Appartement Appartement Appartement Appartement Appartement Appartement Appartement Appartement Appartement Appartement
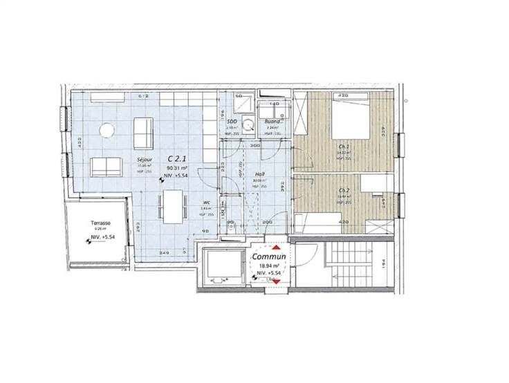
Sorry er is geen nederlandse vertaling beschikbaar. Nous avons le plaisir de vous proposer à la location cet appartement flambant neuf dans la nouvelle Résidence “Le Ravel” Comme son nom l’indique, vous avez un accès immédiat au Ravel. De plus son emplacement est idéal car à proximité de toutes les commodités. La résidence se situe dans une rue à sens unique et elle a une vue dégagée. L’appartement C2.1 de 90m² attend ses premiers locataires. Il est composé d’un hall d’entrée avec détecteur, un grand living avec de grandes baies vitrées, une cuisine équipée, 2 chambres, une salle de douche, une buanderie et un wc. L’ensemble est complété par une belle terrasse de 6m² avec une vue dégagée, 2 places dans le parking couvert et une petite cave. Résidence de standing avec ascenseur, triple vitrage, cuisine équipée, sécurité,... Un bol d’air au centre ville. Loyer: 1000€/mois + 75€/mois de charge pour les communs 1336
Type vastgoed Appartement
Prijs Op aanvraag
Bewoonbare opp. 90
Aantal slaapkamers 2