Te koop Gebouw voor gemengd gebruik

Beschrijving van   

Vergelijk realty's

Te koop Gebouw voor gemengd gebruik

Gebouw voor gemengd gebruik Gebouw voor gemengd gebruik Gebouw voor gemengd gebruik Gebouw voor gemengd gebruik Gebouw voor gemengd gebruik Gebouw voor gemengd gebruik Gebouw voor gemengd gebruik Gebouw voor gemengd gebruik Gebouw voor gemengd gebruik Gebouw voor gemengd gebruik Gebouw voor gemengd gebruik Gebouw voor gemengd gebruik Gebouw voor gemengd gebruik Gebouw voor gemengd gebruik
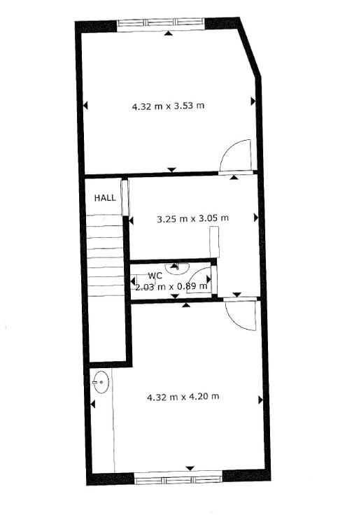
Remarque : Bâtiment de gauche vendu !!! L’Immobilière François Barbière & Associés vous présente ce bel immeuble mixte. Idéalement situé dans le cœur de Hannut, ce bien vous offrira une belle visibilité mais également différentes possibilités pour y développer vos envies avec son rez commercial de +/- 60 m2 et son espace de stockage de +/- 50 m2. L’immeuble comprend également un espace pour une profession libérale situé en façade avant, à l’étage, actuellement aménagé en cabinet de kiné de +/- 45 m2, qui pourrait être réaménagé en appartement. En zone arrière, au premier étage, accessible par l'escalier fixe (blanc) visible sur les photos, le bien dispose d'une espace complémentaire de 55 M², à rénover (bureau, stockage, espace commercial supplémentaire, ...), qui est équipé d'un WC et d'équipements sanitaires. Vous désirez concrétiser vos projets et ce bien vous intéresse ? Demandez-nous plus de renseignements via fb@barbiere.be. Remarque : Remettre offre à partir de 220.000 euros sous réserve d’acceptation des propriétaires.
Type vastgoed Huis
Prijs 220.000
Bewoonbare opp. 120