Te koop Bouwgrond

Beschrijving van   

Vergelijk realty's

Te koop Bouwgrond

Bouwgrond Bouwgrond Bouwgrond Bouwgrond Bouwgrond Bouwgrond Bouwgrond Bouwgrond Bouwgrond Bouwgrond Bouwgrond Bouwgrond Bouwgrond Bouwgrond Bouwgrond Bouwgrond Bouwgrond Bouwgrond
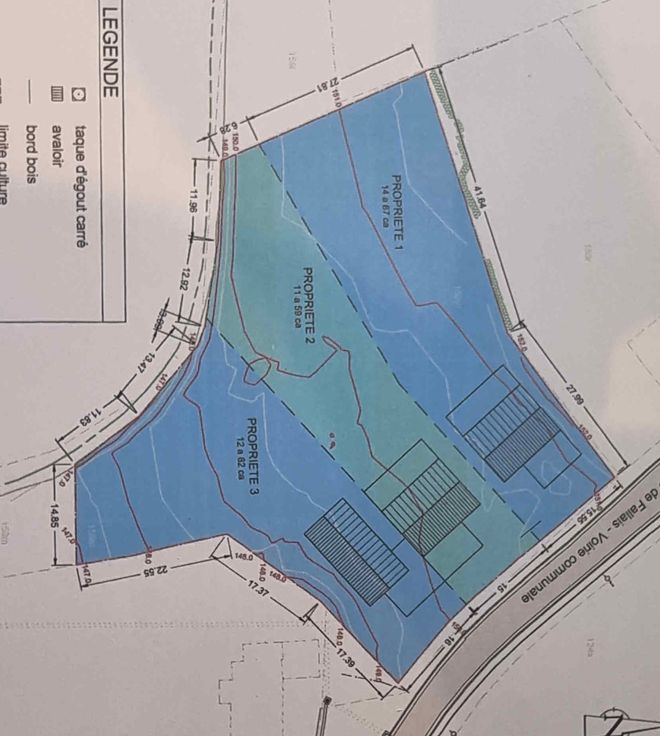
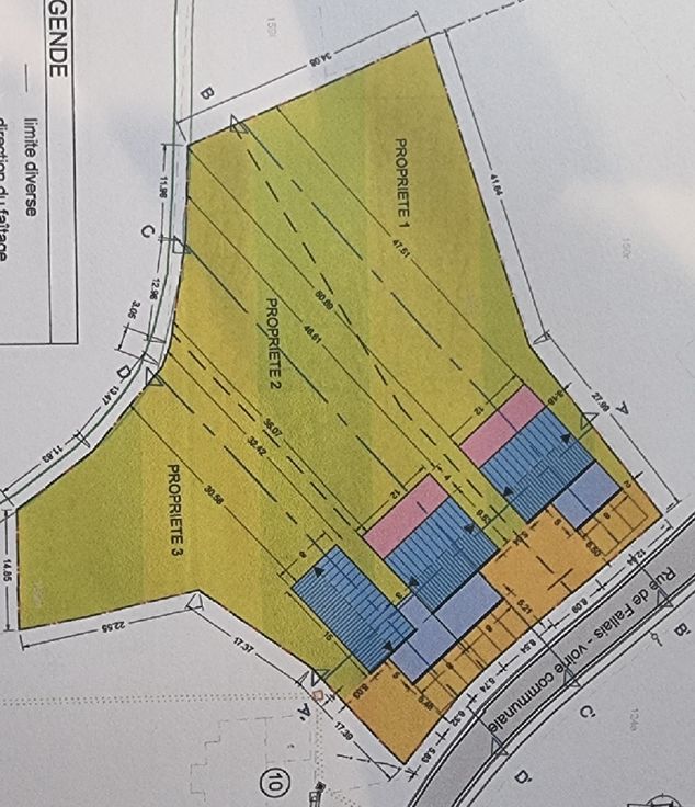
Homega Immo vous propose 3 terrains à bâtir dans la commune de Villers-Le-Bouillet. Avec une vue arrière parfaitement dégagée sur le parc naturel de la Burdinale, ces 3 terrains plats ont une situation magnifique. L'exposition arrière sud-ouest est idéale pour profiter de ce joli coin de campagne. Les terrains sont libres de constructeur et d'architecte. La rue est équipée pour tous les raccordements. Lot n°1 : 14 a 67 ca pour 106 000 € Lot 2 : 11 a 59 ca pour 92 000 € Lot 3 : 12 a 82 ca pour 99 000 €
Type vastgoed Grond
Prijs 92.000