Te koop Huis

Beschrijving van   

Vergelijk realty's

Te koop Huis

Huis Huis Huis Huis Huis Huis Huis Huis Huis Huis Huis Huis Huis Huis Huis Huis Huis Huis Huis Huis Huis Huis
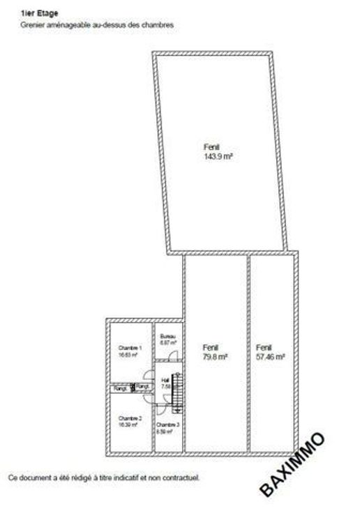
Charmante bâtisse sise au calme, au cœur du village de Froidfontaine. Cette ancienne fermette se compose d’un corps de logis et de différentes dépendances (grange, étable, etc.). Celles-ci offrent de beaux volumes aménageables, nombreuses sont les possibilités d’exploitation. L’ensemble est sis sur un terrain de 16a. Belle opportunité ! Faire offre à partir de 250.000€ Cette annonce ne constitue pas une offre, mais seulement un appel à négociation lancé aux candidats acquéreurs. COMPOSITION : Sous-sol : Caves (sous la cuisine et le salon). Rez-de-chaussée : Hall d’entrée, salon, salle à manger, cuisine, débarras, salle de bains, grange et étables. 1ier Etage : Hall de nuit, 3 chambres, bureau et fenil au-dessus des étables/grange. 2ième Etage : Grenier aménageable (dans le corps de logis). Extérieur : Remises, dépendances et jardin.
Type vastgoed Huis
Prijs 250.000
Bewoonbare opp. 175
Aantal slaapkamers 3
Aantal badkamers 1