Te koop Huis

Beschrijving van   

Vergelijk realty's

Te koop Huis

Huis Huis Huis Huis Huis Huis Huis Huis Huis Huis Huis Huis Huis Huis Huis Huis Huis Huis Huis Huis Huis Huis Huis Huis Huis
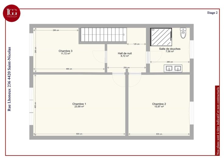
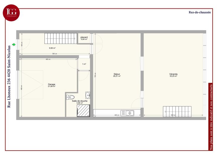
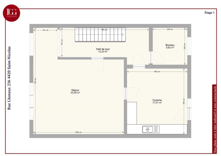
Grande maison uni familiale située sur la commune de Saint-Nicolas. Elle se compose au rez d'un spacieux hall d'entrée, un grand garage de plus ou moins 22m², une salle de douche, un 1er espace séjour avec véranda donnant accès aux caves et au jardin. Au 1er: un hall de nuit desservant la cuisine avec balcon, un beau et lumineux séjour et un bureau. Au 2ième: Un palier desservant trois belles chambres de 23.99m², 15.97m² et 11.72m² et une salle de douche récemment rénovée. Électricité conforme, toiture et pignon Isolés, châssis double vitrage PVC, chauffage central au gaz avec chaudière Vaillant à condensation, PEB C Consommation spécifique d’énergie primaire : 254 kWh/m².an La consommation théorique totale d’énergie primaire de ce logement est de 59 411 kWh/an. RC: 1212€. Gros potentiel à exploiter ! A visiter avant qu'il ne soit trop tard. Infos et visites: 0489/84 99 99 ou contact@igg.immo
Type vastgoed Huis
Prijs Op aanvraag
Bewoonbare opp. 199
Aantal slaapkamers 3