Te koop Grond

Beschrijving van   

Vergelijk realty's

Te koop Grond

Grond Grond Grond Grond Grond Grond Grond Grond Grond Grond Grond Grond Grond Grond Grond Grond Grond Grond
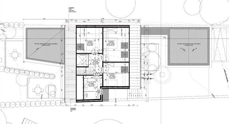
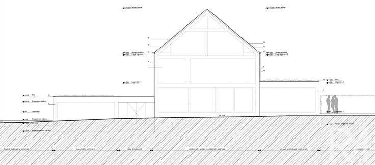
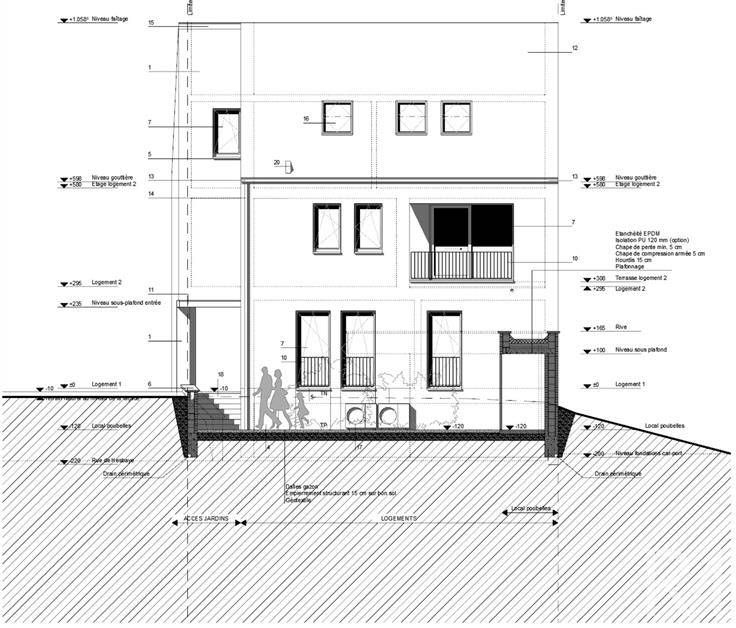
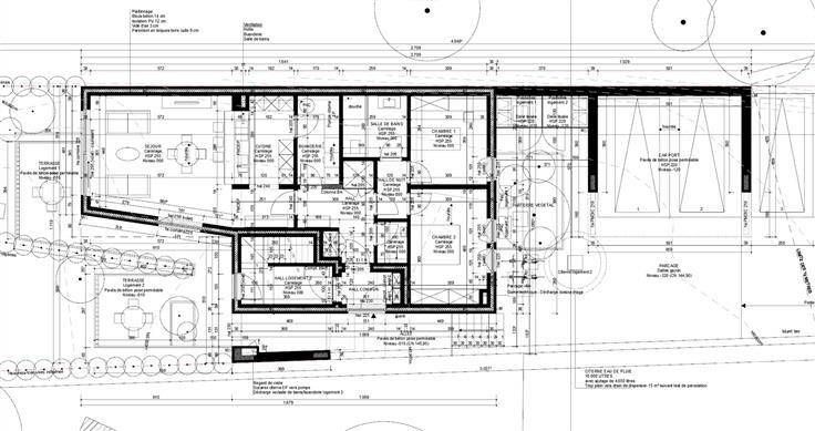
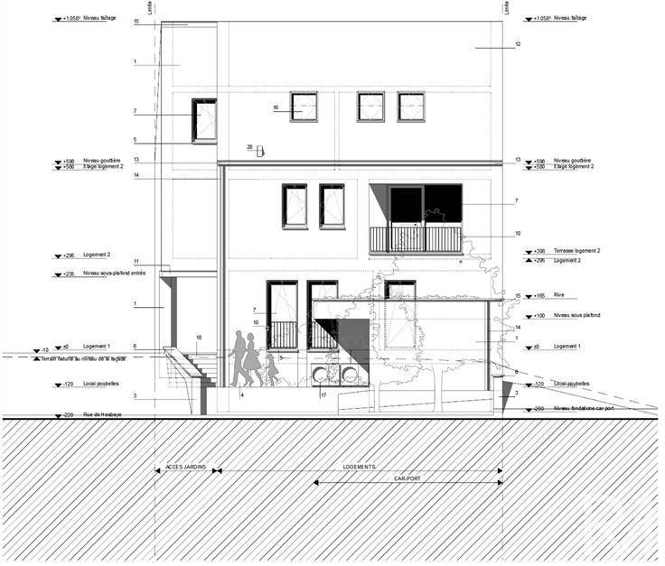
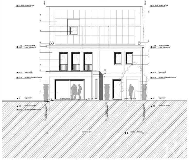
Sorry er is geen nederlandse vertaling beschikbaar. VENDU VENDU VENDU Terrain Prêt à Construire à Donceel : Une Opportunité en Or pour Investisseurs et Promoteurs À la recherche d'un investissement prometteur en pleine nature tout en restant à proximité des commodités essentielles ? Découvrez ce terrain exceptionnel de 537m² situé dans la charmante commune rurale de Donceel, très prisée pour sa tranquillité et sa proximité avec les grands axes. Ce terrain est vendu avec un projet déjà accepté pour la construction de deux appartements distincts : un logement de 90m² au rez-de-chaussée bénéficiant d'un jardin privé, et un duplex de trois chambres à l'étage, avec un accès à un second jardin et une terrasse en façade. Le plan inclut également six places de stationnement, dont deux sous carport, optimisant ainsi l'espace et la commodité. Ce projet est une excellente occasion pour démarrer immédiatement la construction, avec toutes les approbations en place. Que vous soyez un promoteur à la recherche de votre prochain projet lucratif ou un investisseur désirant diversifier votre portefeuille, ce terrain à Donceel représente un choix stratégique et avantageux. N'attendez plus pour explorer cette offre rare sur le marché et envisager le potentiel d'un développement résidentiel de qualité dans un environnement des plus désirables.
Type vastgoed Grond
Prijs Op aanvraag