Te koop Bouwgrond

Beschrijving van   

Vergelijk realty's

Te koop Bouwgrond

Bouwgrond Bouwgrond Bouwgrond Bouwgrond Bouwgrond Bouwgrond Bouwgrond Bouwgrond Bouwgrond Bouwgrond Bouwgrond
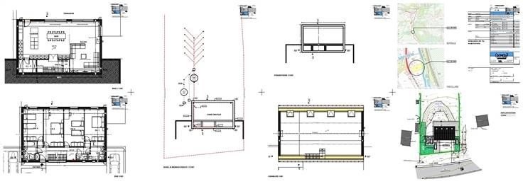
Dit bouwterrein is gelegen in Salmchâteau, deelgemeente van Vielsalm. Het heeft een oppervlakte van 1.407 m². De rivier “La Salm” loopt aan de achterkant van deze kavel, die veel lager ligt dan de grond zelf, waardoor overstromingsgevaar bijna nihil is. Ligt op de route de Cierreux, verbindingsweg tussen Vielsalm en het Groot-Hertogdom van Luxemburg. Bouwvergunning is reeds verkregen. Plannen beschikbaar maar hoeven niet verplicht gevolgd te worden, mits nieuwe aanvraag. Omringd door bossen en natuur.
Type vastgoed Grond
Prijs 99.000