Te koop Horeca

Beschrijving van   

Vergelijk realty's

Te koop Horeca

Horeca Horeca Horeca Horeca Horeca Horeca Horeca Horeca Horeca Horeca Horeca Horeca Horeca Horeca Horeca Horeca Horeca Horeca Horeca
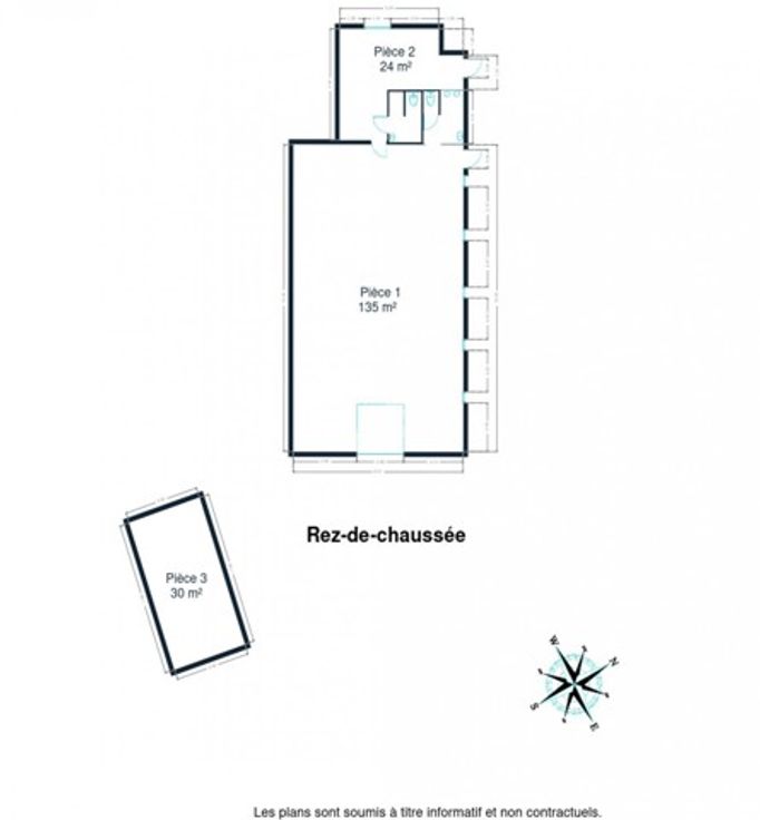
We Invest vous propose la salle de fêtes très connu à Braine-le-Comte ; le Baudriquin !  Idéalement situé proche du centre et de toutes commodités, ce bâtiment vous séduira par ses nombreuses possibilités et aménagements possibles.  Le bâtiment est composé de 2 grands espaces de plus de 135 m2, de WC, d'un atelier et d'un garage séparé.  Prix indicatif : 280.000 €.  Informations et visites : contactez Clément au 0473/67.75.90 ou via clement.c@weinvest.be
Type vastgoed Commercieel
Prijs 280.000
Bewoonbare opp. 333