Te koop Unieke nieuwbouwwoning in de Minnestraat

Beschrijving van   

Vergelijk realty's

Te koop Unieke nieuwbouwwoning in de Minnestraat

Unieke nieuwbouwwoning in de Minnestraat Unieke nieuwbouwwoning in de Minnestraat Unieke nieuwbouwwoning in de Minnestraat Unieke nieuwbouwwoning in de Minnestraat Unieke nieuwbouwwoning in de Minnestraat
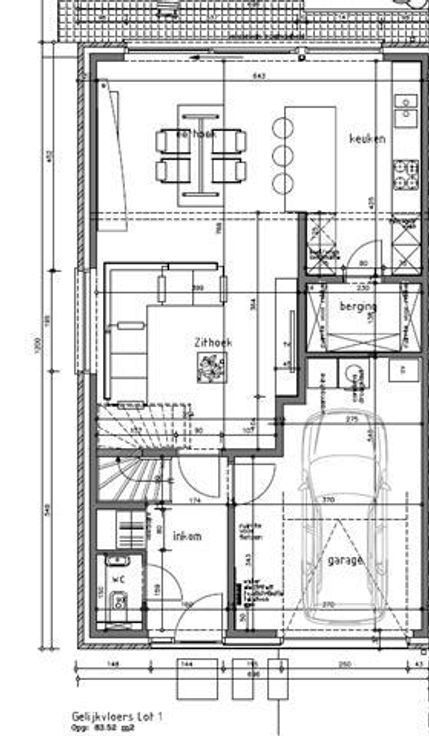
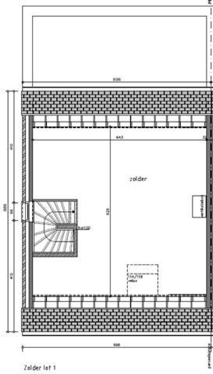
Kom thuis in de Minnestraat. Ontdek deze fantastische uitvalsbasis in Bekkevoort voor gezinnen met kinderen of voor iedereen die rustig wilt wonen. De buurtsupermarkt, het sportcentrum en de kinderopvang liggen vlakbij. Het centrum van Diest op 10 minuten met de auto. In deze groene regio is het heerlijk wonen en ontspannen. Hier bouw je samen met ons een plek om herinneringen te maken voor het leven. Energie-efficiënt, uitgevoerd met de beste materialen en technieken voor ultiem wooncomfort. Zie je jezelf hier wonen, of heb je vragen, neem dan snel contact met ons op! Onze bouwadviseurs lichten je graag in over de unieke mogelijkheden van dit project. Contacteer UNICAS voor meer info op 0488 300 301 of bezoek onze website op www.unicas.be
Type vastgoed Huis
Prijs 417.242
Bewoonbare opp. 145
Aantal slaapkamers 3
Aantal badkamers 1