Te koop Huis

Beschrijving van   

Vergelijk realty's

Te koop Huis

Huis Huis Huis Huis
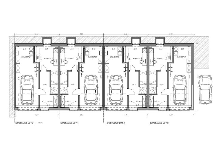
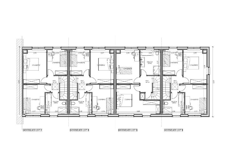
Découvrez ces 4 habitations 2 et 3 façades. À 5 min des grands axes, au calme mais proche du centre ville et commerces, nous vous proposons ce 4 maisons neuves. Dans un cadre verdoyant, ces constructions disposent de beaux espaces de vie avec 3 chambres, salle de bain avec bain et douche, bureau, vestiaire et garage. Le tout pour un budget abordable, sans surprise (prix fixe) et avec d'excellentes performances énergétiques. A partir de 265.000€HF. Contactez nous pour plus d'informations.
Type vastgoed Huis
Prijs 265.000
Bewoonbare opp. 162
Aantal slaapkamers 3
Aantal badkamers 1