Te koop Benedenverdieping

Beschrijving van   

Vergelijk realty's

Te koop Benedenverdieping

Benedenverdieping Benedenverdieping Benedenverdieping Benedenverdieping
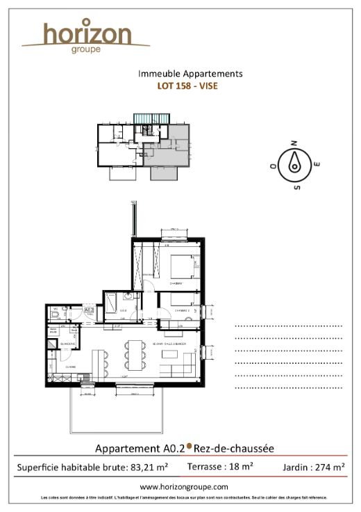
Appartement neuf contemporain 2 chambres d'une superficie de 84 m² (hall, wc, séjour-cuisine, buanderie, salle de douche, chambres) avec une terrasse et jardin exposés sud (abri compris). Afin d’y vivre confortablement, ce bien lumineux sera totalement parachevé (excepté cuisine) avec des matériaux et équipements qualitatifs. Un emplacement de parking extérieur fait partie de l’offre. Equipements : boiler thermodynamique, ascenseur, panneaux photovoltaïques communs, zones vertes etc. Profitez de conditions avantageuses avec notre offre investissement "Zéro souci" . Informations complémentaires au 04/223.37.35 ou info@horizongroupe.com.
Type vastgoed Appartement
Prijs Op aanvraag
Bewoonbare opp. 84
Aantal slaapkamers 2