Te koop MAISON

Beschrijving van   

Vergelijk realty's

Te koop MAISON

MAISON MAISON MAISON MAISON MAISON MAISON MAISON MAISON MAISON MAISON MAISON MAISON MAISON MAISON MAISON MAISON MAISON MAISON MAISON MAISON
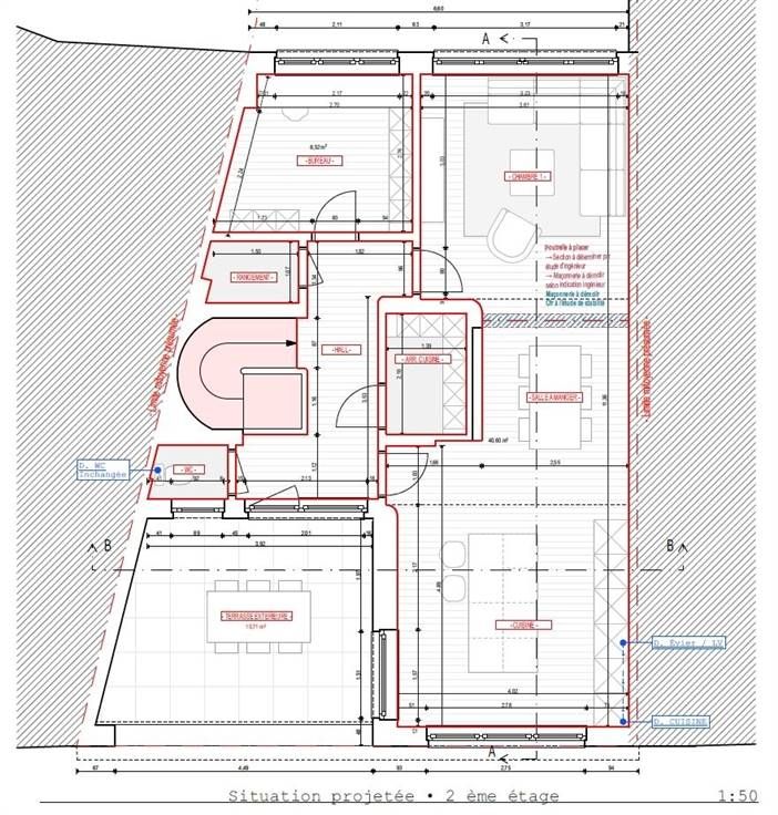
Sorry er is geen nederlandse vertaling beschikbaar. Maison de rapport actuellement composée de 3 appartements à reconfigurer. Composition selon projet : Sous-sol: Hall, 5 caves. Jardin. Rez de chaussée: Hall d'entrée, wc, salle d'attente avec wc, bureau, cuisine. Garage. 1er étage: Hall d'entrée, wc, 3 chambres, salle de bain. 2e étage: Hall, wc, cuisine, arrière cuisine, salle à manger, salon, débarras, bureau. Terrasse. Détails techniques: Châssis PVC double vitrage. Chaudière gaz collective (2012) avec calorimètres. Compteurs électriques individuels. 4 décompteurs d'eau. Boilers électriques. PEB rez arrière n°20230302011758: classe D (Espec: 286 kWh/m².an - Etotale: 10 313 kWh/an). PEB 1er étage n°20141010011119 : classe D (Espec: 284 kWh/m².an - Etotale: 23.941 kWh/an). PEB 2e étage n° 20230302010844 : classe E (Espec: 380 kWh/m².an - Etotale: 31 067 kWh/an). Caractéristiques: Maison de rapport actuellement composée de 3 appartements à reconfigurer en duplex (1er /2ème) selon permis d'urbanisme délivré en 2024 + rez de bureau avec salle d'attente. Idéal pour profession libérale/médicale. Deux des caves situées à l'arrière du bâtiment et donnant sur le jardin peuvent faire l'objet d'un aménagement en bureau/ pièces supplémentaires. Situation idéale à proximité des commerces et services ( gare, bus écoles...). Plans d'architecte et permis disponibles à l'agence.
Type vastgoed Huis
Prijs Op aanvraag
Bewoonbare opp. 141
Aantal slaapkamers 3
Aantal badkamers 1