Te koop Handelsruimte

Beschrijving van   

Vergelijk realty's

Te koop Handelsruimte

Handelsruimte Handelsruimte Handelsruimte Handelsruimte Handelsruimte Handelsruimte Handelsruimte Handelsruimte Handelsruimte Handelsruimte Handelsruimte Handelsruimte Handelsruimte Handelsruimte Handelsruimte Handelsruimte Handelsruimte Handelsruimte Handelsruimte Handelsruimte Handelsruimte Handelsruimte Handelsruimte Handelsruimte Handelsruimte
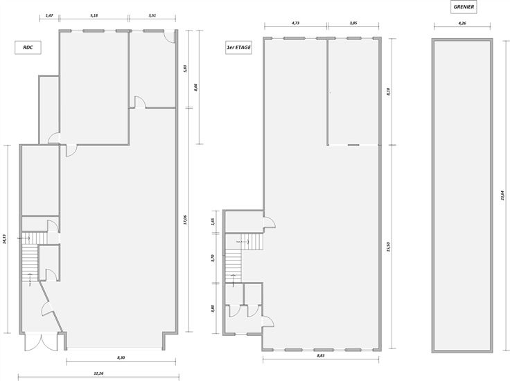
Dit aantrekkelijke pand is ideaal gelegen in het stadscentrum, in het hart van een druk commercieel gebied, en biedt een groot aantal verbouwingsmogelijkheden en gemakkelijk parkeren. Twee ruimtes van 225m² elk, op de begane grond en 1e verdieping, plus een zolder van 95m², geven je een idee van de grootte. Met aantrekkelijke huurrendementen en de mogelijkheid tot conversie is het ideaal voor investeerders die op zoek zijn naar een hoge zichtbaarheid!!!FO 499.000,00€ ss rés. d'accept. ds prop. .
Type vastgoed Commercieel
Prijs 499.000