Te koop Uw THUIS met aandacht voor energiezuinighe...

Beschrijving van   

Vergelijk realty's

Te koop Uw THUIS met aandacht voor energiezuinigheid, modern comfort

Uw THUIS met aandacht voor energiezuinigheid, modern comfort Uw THUIS met aandacht voor energiezuinigheid, modern comfort Uw THUIS met aandacht voor energiezuinigheid, modern comfort Uw THUIS met aandacht voor energiezuinigheid, modern comfort Uw THUIS met aandacht voor energiezuinigheid, modern comfort Uw THUIS met aandacht voor energiezuinigheid, modern comfort Uw THUIS met aandacht voor energiezuinigheid, modern comfort Uw THUIS met aandacht voor energiezuinigheid, modern comfort Uw THUIS met aandacht voor energiezuinigheid, modern comfort
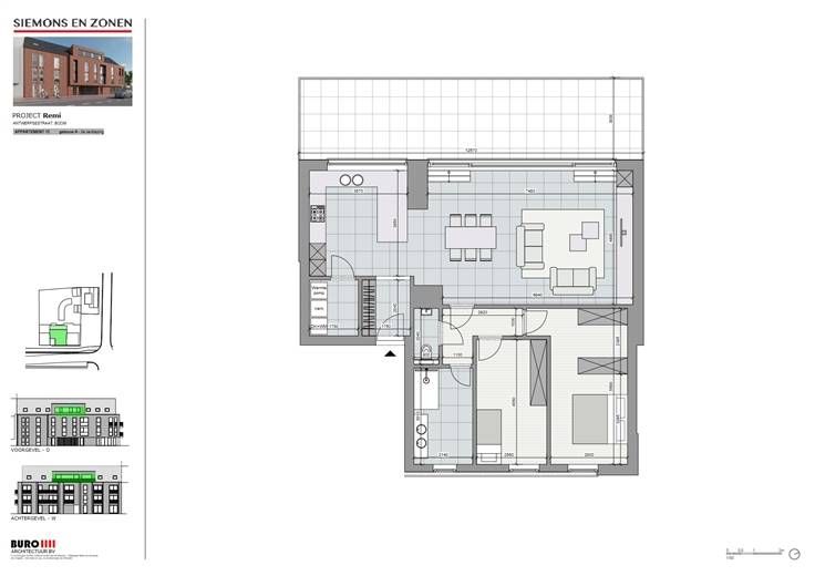
Nieuwbouwresidentie "REMI" met 18 BEN appartementen op een uitstekende locatie. De betere supermarktketens, ziekenhuis AZ Rivierenland en het park van Boom zijn op wandelafstand. Verder is er een directe verbinding met de belangrijkste invalswegen A12 en E19 naar Antwerpen, Brussel en Mechelen. Mobiliteit ten top ! Het project bestaat uit 2 gebouwen uitgevende op een prachtig aangelegde binnentuin. In totaal zijn er 26 autostaanplaatsen, waarvan 14 ondergrondse, 8 overdekte staanplaatsen en 4 buitenstaanplaatsen op het gelijkvloers. Elk appartement wordt afgewerkt met hoogwaardig kwalitatieve materialen en zal uitgerust zijn met de beste technieken inzake energiezuinigheid. In blok A – Antwerpsestraat: Hetappartement/ penthouse "15" op de derde verdieping omvattende: Inkomhall, apart toilet, badkamer, berging, nachthall, slaapkamer 1, slaapkamer 2, zitkamer, eetkamer met open keuken, terras. Kortom de ideale residentie om er uw thuis van te maken of als investering. Tijdens de lanceringsperiode wordt de autostaanplaats U gratis aangeboden! Wenst U meer informatie, een persoonlijke toelichting of wil U tot aankoop overgaan, aarzel dan niet mij te contacteren op 03/886 32 85 of birgit@walbersimmo.be. Ik maak graag tijd voor U!
Type vastgoed Appartement
Prijs 349.000
Bewoonbare opp. 99
Aantal slaapkamers 2
Aantal badkamers 1