Te huur Zoning Nord | Collines de Wavre

Beschrijving van   

Vergelijk realty's

Te huur Zoning Nord | Collines de Wavre

Zoning Nord | Collines de Wavre Zoning Nord | Collines de Wavre Zoning Nord | Collines de Wavre
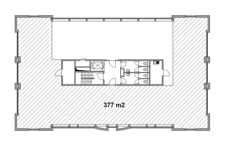
WAVRE NORD BUSINESS PARK - Les Collines de Wavre - Spacieux étage entier de bureaux (+- 377 m²) style "open space". Possibilité d'aménager selon les besoins de votre société. Immeuble moderne équipé (air conditionnée, accès par badge, ascenseur, ... ). Situation idéale, à côté de l'autoroute vers Bruxelles (E411), transport en commun (BUS), à 2 pas de chez GSK. De nombreux services à proximité (pharmacie, magasin, sandwicherie,... . Parkings intérieurs et extérieurs avec ou sans bornes de recharges. N'hésitez pas à programmer une visite de ce plateau en prenant contact avec nous par mail b-tob@hendrix.be ou par téléphone au 010/23.87.07
Type vastgoed Commercieel
Prijs 4.085
Bewoonbare opp. 377